Tämä heti vapaa, kaksikerroksinen rivitalohuoneisto rauhallisella ja viihtyisällä Sudetin alueella odottaa uusia asukkaitaan.
– tilat kahdessa kerroksessa
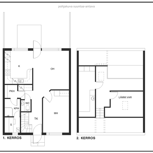
– alakerta 63 m²; keittiö, oh, mh, sauna, pesuh, pukuh, ja wc
– yläkerta n.27m²; huone, khh ja parvitila esimerkiksi etätyöskentelyyn tai lasten leikkitilaksi
– olohuoneesta käynti aurinkoiselle piha-alueelle
– ulkovarasto autokatoksen yhteydessä
– autokatos, jossa varaus hybridiauton lataukseen
– sähkölämmitys ja energiatehokkuutta voi parantaa asentamalla ilmalämpöpumpun
– asumiskustannukset ovat maltilliset, sillä vastike on vain 3,00 €/m²
– oma vesimittari, joten maksat vain kulutuksestasi
– keskustan palvelut ovat lähellä
Tämä hyvin hoidettu taloyhtiö on panostanut kunnossapitoon. Viime vuosina on tehty useita merkittäviä remontteja, kuten salaojien huuhtelu ja sadevesikaivojen puhdistus, kattojen pesu ja maalaus sekä kattoturvatuotteiden asennus. Lisäksi yhtiössä on uusittu mm. ulko-ovet, ikkunat, lukitus, postilaatikot ja lämminvesivaraajat.
Sovi oma esittelyaikasi ja tule tutustumaan!
Sari Liljegren LKV
puh. 0400 985 431
sari.liljegren@asuntokauppalkv.fi
Asuntoportaalien tiedot ovat rajalliset. Tilaa virallinen myyntiesite välittäjältä.
Hyvän välitystavan mukaisesti toimitan yhtiöpaperit vasta esittelyn jälkeen ostotarjousta harkitseville.

Kohdetta myy
03100 Nummelainfo@asuntokauppalkv.fi+358 40 571 4764
Esittely
Perustiedot
Närönkatu 22
03600 Karkkila
Huoneiston pinta-ala on yhtiöjärjestyksen ja isännöitsijäntodistuksen mukaan 63 m². Myyjän ilmoituksen mukaan asuintilojen pinta-ala on 63 m², 2 h,k,s. Lisäksi käyttöullakko n.27m²; huone, kodinhoitohuone ja parvitila. Yhtiöjärjestyksen ja isännöitsijäntodistuksen mukaan käyttöullakko ei ole virallista asuintilaa.
Yhtiölle on 26.3.2021 myönnetty rakennuslupa ullakkotilojen käyttötarkoituksen muutos asuintiloiksi. Lupa on voimassa 14.4.2026 saakka. Myytävän huoneiston osalta rakennusluvan edellyttämät toimenpiteet on suoritettu. Käyttöönottokatselmus suoritettu 18.12.2024.
Pinta-ala ei ole tarkistusmitattu ja todellinen pinta-ala voi olla suurempi tai pienempi, kuin ilmoitettu. Pinta-alat saattavat tämän ikäisissä kohteissa (yhtiö rekisteröity ennen 1.1.1992) poiketa olennaisestikin asuinrakennusten nykyisten mittaustapojen ja standardien (SFS 5139) mukaan laskettavasta asuintilojen pinta-alasta. Pinta-ala voi siis olla edellä mainittua pienempi tai suurempi.
Ostajan halutessa varmistua pinta-alasta, suosittelemme SFS-standardin 5139 mukaista pinta-alamittausta.
Hinta ja kustannukset
Laskettu velattomasta myyntihinnasta.
Hoitovastike 189 € / kk
Huoneisto on ollut asumattomana, peruslämpö päällä.
Varainsiirtovero 1,50 % velattomasta kauppahinnasta.
Taloyhtiön osakeluettelo on ennen kaupantekoa siirretty huoneistotietojärjestelmään ja ostajan tulee hakea omistusoikeuden rekisteröintiä Maanmittauslaitokselta. Ostaja vastaa omistusoikeuden rekisteröintikustannuksista, mahdollisista osakekirjan mitätöinnistä aiheutuvista kustannuksista sekä mahdollisesta hakemusmaksun korotuksesta.
Ostajan pankin ostajalta mahdollisesti veloittamista kaupantekoon, omistusoikeuden rekisteröintiin tai panttausmerkinnän hakemiseen liittyvistä kustannuksista ostaja saa tiedon omalta pankiltaan.
Sähkölämmityksen keskimääräinen kokonaiskustannus 3000 kWh/vuosi
Lisätiedot
Varusteet: sähkökiuas
Seinien pintamateriaali: puu
Lattian pintamateriaali: laatta
2018 Kiuas uusittu.
2015 WC-istuin ja peilikaappi uusittu. WC lattia uusittu.
Lämmönjakotapa: sähköpatterilämmitys
Asunnon tilat ja materiaalit
Rakennusmateriaali: puu, tiili.
Seinien pintamateriaali: maalattu
Lattian pintamateriaali: parketti
uusittu 2024
uusittu 2024
Lattian pintamateriaali: parketti
Lattian pintamateriaali: parketti
Makuuhuoneiden määrä: 1
Seinien pintamateriaali: kaakeli
Lattian pintamateriaali: laatta
Seinien pintamateriaali: maalattu
Lattian pintamateriaali: laatta
Seinien pintamateriaali: maalattu
Lattian pintamateriaali: muovi
Katon pintamateriaali: Tiilikate
Taloyhtiö
2024 Energiatodistuksen päivitys. Autokatoksen katon pesu ja maalaus. Kattojen pesu ja maalaus. Kattoturvatuotteet. Salaojien huuhtelu ja sadevesikaivojen puhdistus. Yläkertojen käyttöönottotarkastus suoritettiin 31.10.2024 (poislukien B8 ja B10).
2023 Talojen päätyjen maalaus. Autokatoksen peruskorjaus - paneelien vaihtoa, maalaus, varaston ovet 2 kpl, kattoruuvien kiristys, rännin asennus, ulkopistorasiat.
2022 Ilmanvaihtokanavien puhdistus. Korvausilmaventtiilien puhdistus sekä suodatinkankaan vaihto. Ilmanvaihdon mittaus ja säätö.
2021 Sadevesikaivon pumpun vaihto ja kaivon tyhjennys. Sähköverkkoon kytketyt palovaroittimet ylä-/alakertoihin
2020 Autokatosalueen sadevesikaivojen puhdistus Huippuimurien vaihto ym kattotyöt (kuntokartoitus) Keskuspölynimurit B9, C12 ja C13.
2019 A4 Suihku ja saunatilojen remontointi, yhtiö vesieristykseen saakka. Vesikalusteiden uusintaa A2, B5, B7, B9, B11 (koko vuosi). Huoneistojen väliaidat.
2018 Stala PL3 lukolliset postilaatikot. Keskuspölynimurit B7 ja B8. Vesikaton kuntokartoitus. Suihkusettti vaihdettu B9, keittiön hana B7, vesiposti B11.
2017 B8 huipparin kaulus murtunut ja vuotanut yläkertaan. Lukot ulko-oviin. Ulko-ovien vaihto. Autokatoksen led valaistus sekä A3 patterit 2 kpl. Vesikalusteiden uusintaa, suihkusetit B5, B10 ja C14 sekä keittiön hana A3, B5, pesukonehana B11.
2016 Harjatiivisteiden lisäys. Lämminvesivaraajien vaihto. Salaoja ja leikkialue työt ja tarvikkeet. Leikkialueen keinu ja turva-alusta.
2015 Salaojatutkimus. Perusvesipumppu + uusi purkukaivo 1/2 osuus. Molok jäteastia. IF Vesivahinko B6 asunnossa. IF korvaa taloyhtiön rakenteille ym koituneet vahingot. Lämminvesivaraaja uusittu yhtiön laskuun.
2014 Ikkunoiden vaihto. Perusvesipumpun vaihto ja korjaus.
2013 Vaihdettu hanoja ym asukkaille lähetetyn kyselyn perusteella. Sadevesikaivon peruspumppu vaihdettu. Vaihdettu pattereita ja korjattu muita sähköteknisiä vikoja asukkaille tehdyn kyselyn perusteella. Viemärilämmityksen asennus autokatokselle. A4 korvattava vesivahinko keittiössä. Ilmanvaihtokanavien puhdistus.
2012 Päätyikkunan vaihto A4. Varaston ovet maalattu.
Asunto C13 pesuhuone ja sauna remontoitu. Lattialaatassa ei havaittu halkeamia. Talon C halkeamien arvioinnissa käytetty apuna suunnittelija Heikki Saarisen arviota. Ei tarvetta maaperätutkimuksille vaan routiminen ja kosteus luultavimmin aiheuttanut tiiliseinien halkeamat.
2011 Parvekeovet vaihdettu. Autokatoksen varaston seinän korjaus. Rakennusvirheen johdosta varaston seinärakenteet lahoamispisteessä. Nyt korjattu postilaatikkoseinä sekä etuseinä oveen saakka. Peruskuntoarvio ja PTS ehdotus. Autokatosalueen asfaltointi. Lemminkäinen Oy urakoi autokatosalueen asfaltoinnin 16-19.7.2010.
2009 Talojen päätykolmiot maalattu.
2007 Autokatos maalattu. Pihavalaistus. Vanhat lamput poistettu talkoiden yhteydessä 2010.
2002 Ilmanvaihtokanavien puhdistus. Sadevesikourut uusittu.
2025: Vesikalusteiden vaihto ja kunnostus sitä mukaan kun menee rikki. Pattereiden uusintaa tarvittaessa. Valokuidun hankinta. Pihateiden korjaus ja soran lisääminen tai vaihtoehtoiesti asfaltointi. Sepelin lisääminen talon seinustoille.
2026: Nurmikoiden korjaus/uusiminen. Sadevesikaivon (pumppaamo) toiminnan varmistus ja saneeraus. Kylpyhuone ja sauna tilojen saneerausta, yhtiön vastuulla vesieristeeseen saakka.
2027 -> Sähköautojen latauas. Aurinkopaneelit - kiinteistön sisäinen energiayhteisö - Elenia. Kaapelivientien tarkastus ja tiivistys. Potentiaalijärjestelmän tarkastus (maadoitus-puutteet tulee tarkastaa muun työn ohessa). Laite- ja voimaryhmäjohtojen uusiminen. Liittymisjohdon tarkastus. Asbestikartoitus.
Helsingintie 19 C 9
03600 Karkkila
puh. 040 767 3354
Kiinteistökolmio H&N huolehtii suullisen sopimuksen mukaisesti ruohonleikkuusta, lumenaurauksesta, hiekoituksesta ja liputuksesta.
Karkkilan kaupunki / Kaavoitus, puh. 09 4258 3600
Muut lisätiedot
Ulkoautopaikat: 4
Asunnon käytössä olevat autopaikat: autokatospaikka
Autokatoksessa mahdollisuus ladata hybridiautoa
sähköpistoke kuuluu huoneistoon (yhtiöjärjestys)
Nyhkälän koulun ala-aste ja Karkkilan Yhteiskoulu (yläaste ja lukio) vajaa kilometri.
Päiväkodit 1,5-4km, myös perhepäivähoitajia lähistöllä.
VT2:lle nopea kulku, josta tunnin ajomatka pääkaupunkiseudulle.




















