50-luvulla rakennettu tunnelmallinen koti 2000 m² puutarhatontilla, lähellä koulua ja päiväkotia.
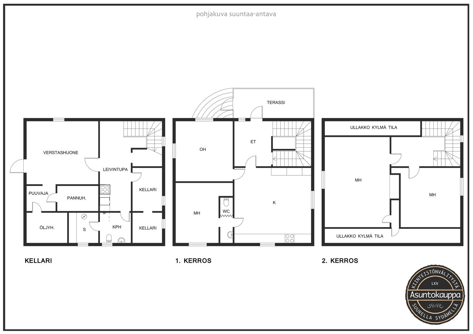
– Tilat kolmessa tasossa.
– Rakennusoikeutta jäljellä n. 200 k-m2!
– Pesuhuone ja sauna on remontoitu v. 2007.
– Todella tilava keittiö, johon mahtuu isompikin ruokaryhmä ja kaappitilaa voi lisätä remontin yhteydessä.
– Saunassa kertalämmitteinen puukiuas, joka tarjoaa pehmeät löylyt.
– Kellarikerroksessa erillinen leivintupa, jossa puuliesi sekä leivinuuni.
– Talousrakennuksessa varastotilaa sekä autotalli.
Sovi oma esittelyaikasi!
Hanna Johansson YKV, LKV
0405714764
hanna.johansson@asuntokauppalkv.fi 
Kohdetta myy

Hanna JohanssonYrittäjä, Ylempi kiinteistönvälittäjä YKV, LKVhanna.johansson@asuntokauppalkv.fi040 571 4764
Asuntokauppa Hanna&Hanna LKV OyY-tunnus: 2635442-1Keskikuja 4
03100 Nummelainfo@asuntokauppalkv.fi+358 40 680 7776
03100 Nummelainfo@asuntokauppalkv.fi+358 40 680 7776
Esittely
Kohteen seuraavaa esittelyajankohtaa ei ole tiedossa
Perustiedot
21460455
21460455
Vihti, Ojakkala
Nummitie 9
03250 Vihti
Nummitie 9
03250 Vihti
Omakotitalo
Ei
Omistusasunto
4h, k, kph, s, leivintupa, kellari, verstashuone,
4
90 m²
10 m²
100 m²
Huoneistoala on Vihdin kunnan epävirallisen Rakennus- ja huoneistorekisteriotteen mukaan 90 m² ja kerrosala on 100 m². Asuinpinta-alaa ei ole mitattu.
Ostajan halutessa varmistua pinta-alasta, suosittelemme SFS-standardin 5139 mukaista pinta-alamittausta.
Ostajan halutessa varmistua pinta-alasta, suosittelemme SFS-standardin 5139 mukaista pinta-alamittausta.
3
1957
1957
Neuvoteltavissa
Vapautuu nopeastikin
Vapautuu nopeastikin
Hinta ja kustannukset
175 000 €
175 000 €
1 944,44 € / m²
Laskettu velattomasta myyntihinnasta.
Laskettu velattomasta myyntihinnasta.
476 € / v
Öljyä kulunut 1800 litraa vuodessa.
Sähkön kulutus n. 4500 kWh/vuosi.
Sähkön kulutus n. 4500 kWh/vuosi.
Lisätiedot
Ei
Asunnossa on sauna
Varusteet: puukiuas
Seinien pintamateriaali: puu
Lattian pintamateriaali: laatta
Varusteet: puukiuas
Seinien pintamateriaali: puu
Lattian pintamateriaali: laatta
Ei
Takka, leivinuuni
Tyydyttävä
Pesuhuone ja sauna on uusittu v. 2007.
Korjauksiin haettu / saatu lupa rakennusvalvontaviranomaiselta: Ei tiedossa
Lopputarkastus tehty: Ei tiedossa
Em. Korjauksiin liittyvät suunitelmat ja asiakirjat toimeksiantajalla: Ei tiedossa
Korjauksiin haettu / saatu lupa rakennusvalvontaviranomaiselta: Ei tiedossa
Lopputarkastus tehty: Ei tiedossa
Em. Korjauksiin liittyvät suunitelmat ja asiakirjat toimeksiantajalla: Ei tiedossa
Ei
Mikäli ostaja remontoi kaupan kohteessa sijaitsevia rakennuksia, ostajan tulee ennen remontin aloittamista teettää tarvittaessa kohteeseen asbestikartoitus. Kartoitus vaaditaan teetettäväksi rakennuksissa, joiden loppukatselmus on tehty ennen vuotta 1994. Mikäli asbestia kartoituksessa ilmenee, tulee ostajan teettää asbestinpurku alan ammattilaisella.
Mikäli ostaja remontoi kaupan kohteessa sijaitsevia rakennuksia, ostajan tulee ennen remontin aloittamista teettää tarvittaessa kohteeseen asbestikartoitus. Kartoitus vaaditaan teetettäväksi rakennuksissa, joiden loppukatselmus on tehty ennen vuotta 1994. Mikäli asbestia kartoituksessa ilmenee, tulee ostajan teettää asbestinpurku alan ammattilaisella.
Ei lain edellyttämää energiatodistusta
Öljylämmitys, puulämmitys
Lämmönjakotapa: vesikiertoinen patterilämmitys
Lämmönjakotapa: vesikiertoinen patterilämmitys
Kunnan vesijohto
Kunnan
Painovoimainen
Antenni-TV
Asunnon tilat ja materiaalit
Pääasiallinen rakennusmateriaali: Puu
Varusteet: jääkaappi, pakastin, sähköliesi, puuhella, astianpesukone, liesituuletin hormilla
Seinien pintamateriaali: tapetti, puolipaneeli
Lattian pintamateriaali: laminaatti
Seinien pintamateriaali: tapetti, puolipaneeli
Lattian pintamateriaali: laminaatti
Lattian pintamateriaali: parketti
Lattian pintamateriaali: laminaatti, lauta
Makuuhuoneiden määrä: 3
Makuuhuoneiden määrä: 3
Varusteet: suihku
Seinien pintamateriaali: kaakeli
Lattian pintamateriaali: laatta
Seinien pintamateriaali: kaakeli
Lattian pintamateriaali: laatta
Keskikerroksessa erillinen WC ja kph:ssa toinen WC.
Varusteet: lattiaan asennettu WC
Seinien pintamateriaali: maalattu
Lattian pintamateriaali: muovi
Varusteet: lattiaan asennettu WC
Seinien pintamateriaali: maalattu
Lattian pintamateriaali: muovi
Ulkovarasto, kellari tai kellarikomero
Katto: Harjakatto
Katon pintamateriaali: Peltikate
Katon pintamateriaali: Peltikate
Asunnon tontti
927-420-2-57
Seppola
2 000 m²
Tasamaa
Oma
Vihdin kunnan rakennusjärjestyksen mukaan rakennuspaikan kerrosalaa saa olla enintään 25% rakennuspaikan pinta-alasta. Omakotirakennusta tai muuta enintään kahden perheen taloa palveleva talousrakennus saa olla enintään 3,50 metriä korkea.
Asemakaava
AO-1 Erillispientalojen korttelialue
AO-1 Erillispientalojen korttelialue
Talousrakennus
Kyllä
Muut lisätiedot
Ulkoilureitit lähellä, uimaranta, golfkenttä, urheilukenttä
Ojakkalan keskustan palvelut ja koulut lähellä.
Bussipysäkki, sujuvat yhteydet omalla autolla
Sähköliittymä, viemäriliittymä, vesiliittymä

































