Järvimaisemissa talo, jossa on tehty mittavat remontit, mutta ne ovat jääneet kesken.
– koira-avusteinen kosteusvaurio- ja sisäilmakartoitus tehty huhtikuussa 2025
– kuntotarkastettu elokuussa v. 2023
– käyttövesiputket uusittu v. 2016
– öljylämmitys
– 16 metriä pitkä ja 2,90 metriä korkea lämmin autotalli talon alakerrassa
– tontilla enimmäkseen tasamaata, mutta myös upeat kalliot maisematasanteineen.
– Salmijärvi ja Salmen ulkoilualue vaellusreitteineen lähellä
Helsingin keskustaan n. 40 min autolla.
Sovi oma esittelyaikasi!
Hanna Koponen YKV
040 6807776
hanna.koponen@asuntokauppalkv.fi 
Kohdetta myy

Hanna KoponenToimitusjohtaja, Yrittäjä, Ylempi kiinteistönvälittäjä YKV, LKV, Kaupanvahvistajahanna.koponen@asuntokauppalkv.fi+358 40 680 7776
Asuntokauppa Hanna&Hanna LKV Oy, NummelaY-tunnus: 2635442-1Keskikuja 4
03100 Nummelainfo@asuntokauppalkv.fi+358 40 571 4764
03100 Nummelainfo@asuntokauppalkv.fi+358 40 571 4764
Esittely
Kohteen seuraavaa esittelyajankohtaa ei ole tiedossa
Perustiedot
30158462
30158462
Vihti, Otalampi
Vanha Porintie 475
03300 Vihti
Vanha Porintie 475
03300 Vihti
Omakotitalo
Ei
Omistusasunto
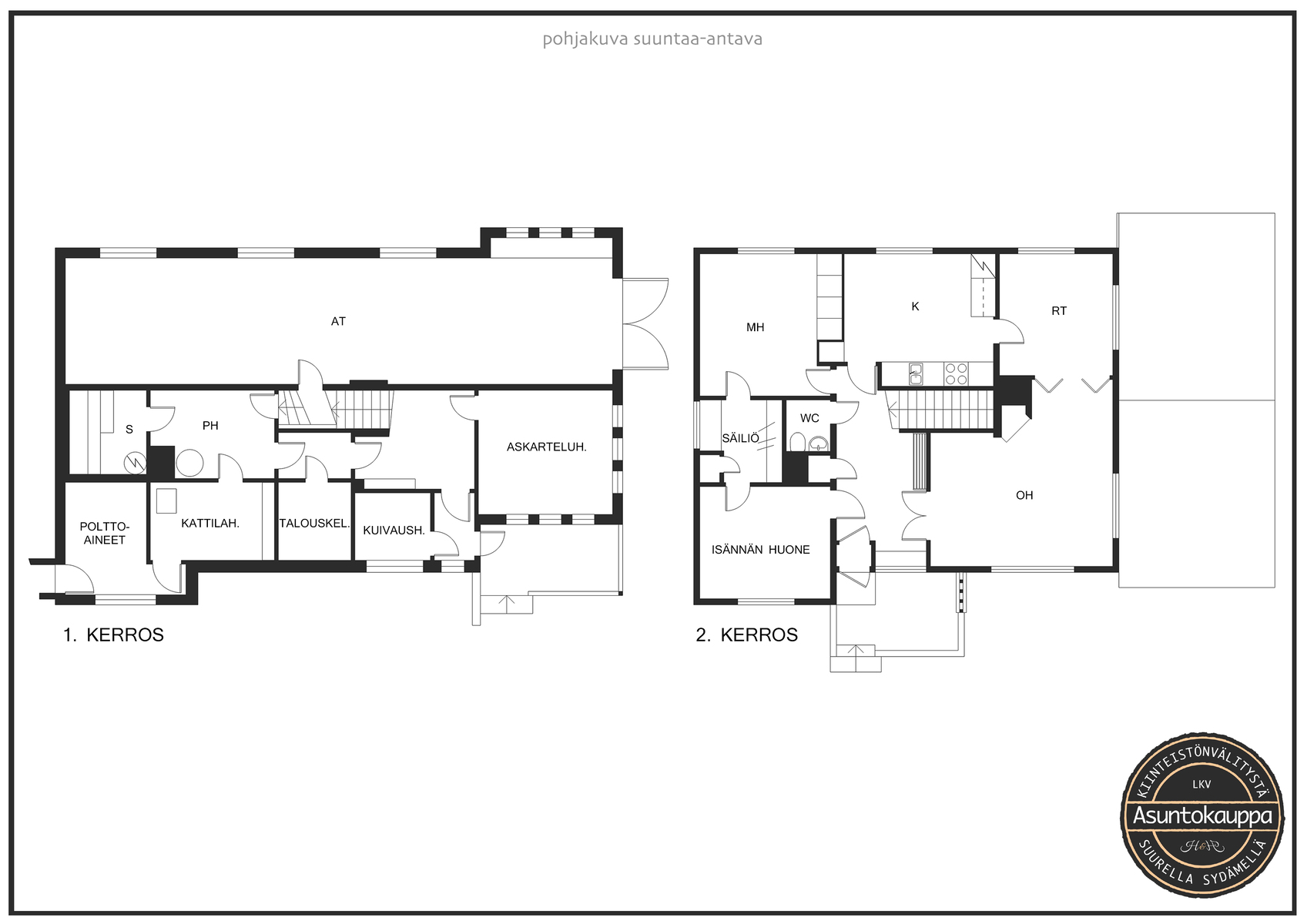
4h, k, s, autotalli
4
99 m²
122 m²
221 m²
Huoneistoala on rakennuslupa-asiakirjojen mukaan 99 m², kellarin ala on 92 m² ja siipirakennuksen lämmin osa on 30 m². Asuinpinta-alaa ei ole mitattu.
Pinta-aloja ei ole tarkistusmitattu ja ne saattavat poiketa olennaisestikin ilmoitetusta. Ostajan halutessa varmistua pinta-alasta,
suosittelemme SFS-standardin 5139 mukaista pinta-alamittausta.
Pinta-aloja ei ole tarkistusmitattu ja ne saattavat poiketa olennaisestikin ilmoitetusta. Ostajan halutessa varmistua pinta-alasta,
suosittelemme SFS-standardin 5139 mukaista pinta-alamittausta.
2
1962
1962
Hinta ja kustannukset
90 000 €
90 000 €
909,09 € / m²
Laskettu velattomasta myyntihinnasta.
Laskettu velattomasta myyntihinnasta.
Lisätiedot
Asunnossa on sauna
Varusteet: puukiuas
Seinien pintamateriaali: puu
Lattian pintamateriaali: laatta
Varusteet: puukiuas
Seinien pintamateriaali: puu
Lattian pintamateriaali: laatta
Takka
Välttävä
Myyjällä ei ole tietoa, onko talo korjattavissa asuinkelpoiseksi.
Saunan seinät paneloitu ja lauteet uusittu v. 1993.
2015 ylärinteen puolelle asennettu salaojaputki sekä patolevyt.
2016 uusittu käyttövesiputket.
2022 öljypoltin huollettu.
1980-luvun loppupuolella uusittu öljykattila.
2018 öljysäiliö tarkastettu ja muovipinnoitettu.
2021 vaihdettu lämminvesivaraaja sähkötoimiseksi.
2024 Eteisen ja keittiön lattiamattojen poistaminen asbestipurkuna. Keittiön seinän laatat purettiin myös asbesti purkuna.
- Eteiseen, makuuhuoneisiin,
keittiöön ja olohuoneeseen on lisätty Velcon vlr-100 korvausilma venttiilit.
- Yläpohjan päätykolmioihin on lisätty reiät ja tuuletusritilät.
- Lattian pikisivelyt poistettu ja olohuoneen, ruokailutilan, keittiön ja pienen makuuhuoneen lattiat tasoitettiin Weberin 4100 tasoitteella. - Yläkerran katosta poistettiin
vanhat haltex pintalevyt ja kattoon asenettiin Recticelin 50 mm eristelevyt.
- Eteisen katosta
löytyi viemärin tuuletus kanavan vuotokohta ja muutama mätä lauta.
- Yläkerrasta purettiin kaikkien lattioiden betoni pintalaatat ja poistettiin vaurioitunut lattiaeriste lattian ja pinta laatan välistä. Jäljelle jääneen lattian pinnasta hiottiin
pikisively pois.
- Seinistä poistettiin kaikki vanha puurunkoon asti . Tiiliseinästä poistettiin laasti purseet että tiilen ja sisäseinän välissä kiertää ilma ja on riittävä tuuletus rako. Villa
eristeet korvattiin Finfoamilla.
Korjauksiin haettu / saatu lupa rakennusvalvontaviranomaiselta: Ei tiedossa
Lopputarkastus tehty: Ei tiedossa
Em. Korjauksiin liittyvät suunitelmat ja asiakirjat toimeksiantajalla: Ei tiedossa
2015 ylärinteen puolelle asennettu salaojaputki sekä patolevyt.
2016 uusittu käyttövesiputket.
2022 öljypoltin huollettu.
1980-luvun loppupuolella uusittu öljykattila.
2018 öljysäiliö tarkastettu ja muovipinnoitettu.
2021 vaihdettu lämminvesivaraaja sähkötoimiseksi.
2024 Eteisen ja keittiön lattiamattojen poistaminen asbestipurkuna. Keittiön seinän laatat purettiin myös asbesti purkuna.
- Eteiseen, makuuhuoneisiin,
keittiöön ja olohuoneeseen on lisätty Velcon vlr-100 korvausilma venttiilit.
- Yläpohjan päätykolmioihin on lisätty reiät ja tuuletusritilät.
- Lattian pikisivelyt poistettu ja olohuoneen, ruokailutilan, keittiön ja pienen makuuhuoneen lattiat tasoitettiin Weberin 4100 tasoitteella. - Yläkerran katosta poistettiin
vanhat haltex pintalevyt ja kattoon asenettiin Recticelin 50 mm eristelevyt.
- Eteisen katosta
löytyi viemärin tuuletus kanavan vuotokohta ja muutama mätä lauta.
- Yläkerrasta purettiin kaikkien lattioiden betoni pintalaatat ja poistettiin vaurioitunut lattiaeriste lattian ja pinta laatan välistä. Jäljelle jääneen lattian pinnasta hiottiin
pikisively pois.
- Seinistä poistettiin kaikki vanha puurunkoon asti . Tiiliseinästä poistettiin laasti purseet että tiilen ja sisäseinän välissä kiertää ilma ja on riittävä tuuletus rako. Villa
eristeet korvattiin Finfoamilla.
Korjauksiin haettu / saatu lupa rakennusvalvontaviranomaiselta: Ei tiedossa
Lopputarkastus tehty: Ei tiedossa
Em. Korjauksiin liittyvät suunitelmat ja asiakirjat toimeksiantajalla: Ei tiedossa
Ei
Ei lain edellyttämää energiatodistusta
Öljylämmitys
Lämmönjakotapa: vesikiertoinen patterilämmitys
Lämmönjakotapa: vesikiertoinen patterilämmitys
Maanvarainen betonilaatta.
Kaivo
Oma, saostuskaivo, imeytyskenttä
Saostuskaivo tyhjennetty kerran vuodessa
Saostuskaivo tyhjennetty kerran vuodessa
Painovoimainen
Antenni-TV
Asunnon tilat ja materiaalit
Pääasiallinen rakennusmateriaali: Muu
Rakennusmateriaali: puu, tiili, betoni.
Rakennusmateriaali: puu, tiili, betoni.
Varusteet: suihku
Seinien pintamateriaali: kaakeli
Lattian pintamateriaali: laatta
Seinien pintamateriaali: kaakeli
Lattian pintamateriaali: laatta
Varusteet: peilikaappi, bidee
Seinien pintamateriaali: kaakeli
Lattian pintamateriaali: laatta
Seinien pintamateriaali: kaakeli
Lattian pintamateriaali: laatta
Katto: Muu
Katon pintamateriaali: Muu
Katon kunto: Peltikate asennettu v. 1971, maalattu v. 2016. Suositellaan maalaamista.
Katon pintamateriaali: Muu
Katon kunto: Peltikate asennettu v. 1971, maalattu v. 2016. Suositellaan maalaamista.
Asunnon tontti
927-437-1-92, 927-437-1-123
KUOPPALA, KIPALE
5 070 m²
Tasamaa
Tontti suurimmaksi osaksi tasamaata. Kaunis kallio talon takana.
Tontti suurimmaksi osaksi tasamaata. Kaunis kallio talon takana.
Oma
Yleiskaava
Kyllä
Muut lisätiedot
Sähköliittymä
Lämminvesivaraaja






























