Remontoi tästä unelmiesi koti!
Läpitalon huoneisto, joka tarjoaa loistavan pohjan ja mahdollisuuden tehdä juuri omannäköisen kodin.
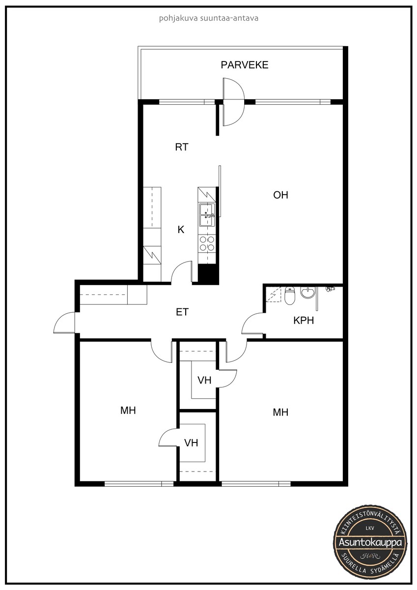
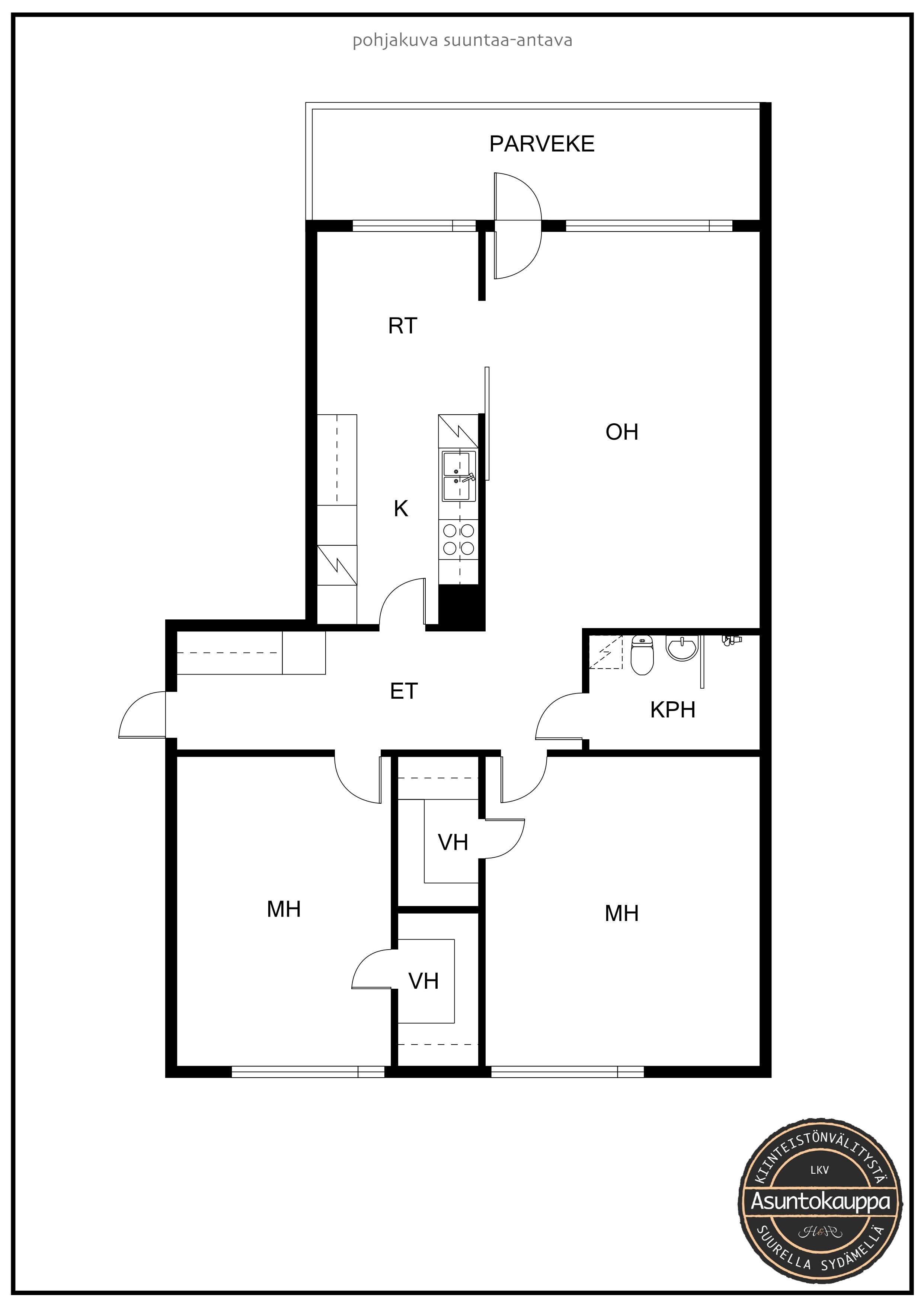
– 3 h, k, kph, parveke
– 77,50 m² läpitalon huoneisto on valoisa ja avara
– Muuttamaan/ remontoimaan pääset vaikka heti kaupanteon jälkeen
– Peruskuntoinen asunto, paitsi kylpyhuone on remontoitu
– Kaksi vaatehuonetta
– Lasitettu parveke – lisähuone keväästä syksyyn
– Asunto sijaitsee 3.kerroksess (ei hissiä)
– Asuntokaupan yhteydessä on mahdollisuus ostaa eri osakesarjalla oleva autotalliosake
– Yhtiössä ekologinen maalämpö sekä Lounea valokuitu
– Lähikauppa K-Market 400 m, K-Supermarket, S-Market ja Lidl alle 2 km
– Alakoulu 450 m, yläaste ja lukio 700 m
– Liikuntahalli, kuntosalit ja fresbeegolf-rata 700 m. Karkkilan koskireitti 1 km.
– Pyhäjärven uimaranta (myös avantouinti) sekä Toivikkeen ulkoilumaastot 1,50 km
Kiinnostuitko? Ota yhteyttä, niin mennään katsomaan paikan päälle!
Sari Liljegren LKV
puh. 0400 985 431
sari.liljegren@asuntokauppalkv.fi
Asuntoportaalien tiedot ovat rajalliset. Tilaa virallinen myyntiesite välittäjältä.
Hyvän välitystavan mukaisesti toimitan yhtiöpaperit vasta esittelyn jälkeen ostotarjousta harkitseville.

Kohdetta myy
03100 Nummelainfo@asuntokauppalkv.fi+358 40 680 7776
Esittely
Perustiedot
03600 Karkkila
Hinta ja kustannukset
Laskettu velattomasta myyntihinnasta.
Hoitovastike 426,25 € / kk
Lisätiedot
Ilmansuunta: länsi
Keittiön ja eteisen katot maalattu.
Lämmönjakotapa: vesikiertoinen patterilämmitys
Asunnon tilat ja materiaalit
Betoni-tiili
Seinien pintamateriaali: maalattu
Lattian pintamateriaali: muovi
Lattian pintamateriaali: muovi
Lattian pintamateriaali: muovi
Makuuhuoneiden määrä: 2
Seinien pintamateriaali: muovi
Lattian pintamateriaali: muovi
Katon pintamateriaali: Huopakate
Taloyhtiö
2020: Piharakennus (grillikatos).
2019: Saunaremontti.
2018: Sokkelikorjaus. Tuuletusparvekkeiden korjaukset.
2016: Kattokorjaus.
2014: Siirrytty maalämpöön.
2012: Patteriventtiilit vaihdettu.
2011: Öljysäiliön vaihto. Teräsaita tontin ympärille.
2005: A-rapun lattia korjattu. A ja B rapun sisäpinnat maalattu. Saunatilat maalattu.
2001: Päävesijohto uusittu.
1998: Julkisivun ja yleisten tilojen ikkunat uusittu.
1993: Käyttövesiputkistojen ja hanojen uusiminen.
1986: Katon korjaus.
2025: B-portaan yksi tuuletusparveke.
2026: Kaksi hidasta sähkölatauspaikkaa. Viemäreiden sukitus toukokuu (alustava).
2025-2029 Jatkuvaa seurantaa ja muuta esille tulevaa.
Kahilaisentie 8 A 1
03600 Karkkila
Puh. 045 670 1420
Karkkilan kaupunki / Kaavoitus, puh. 09 4258 3600
Muut lisätiedot
Ulkoautopaikat: 6
Asunnon käytössä olevat autopaikat: autotalli
Asunto-osakekaupan yhteydessä on mahdollisuus ostaa eri osakeryhmällä oleva autotalliosake, osakenumerot 8745-8785, osakeryhmätunnus OHKFCV7MLTC4XG93, pinta-ala 19 m², AT4, hinta 4 000 euroa, vastike 52,25 euroa/kk.
K-Supermarket, S-Market, Apteekki ja Lidl vajaa 2 km.
Yhteiskoulu (yläaste ja lukio) 700 m.
Nyhkälän koulun ala-aste 450 m.
Päiväkodit 1-3km.
Tunnin ajomatka pääkaupunkiseudulle.













