HETI VAPAA!
Remonttia kaipaava läpitalon kolmio aivan Nummelan keskustan palveluiden äärellä.
-Toimiva pohjaratkaisu isoilla huoneilla
-Kylpyhuone remontoitu 2018
-Parveke sisäpihalle
-Toisen kerroksen asunto vain yhdellä porrasnousulla
-Keskeinen sijainti lähellä kauppoja, kouluja ja päiväkoteja sekä hyvien kulkuyhteyksien varrella
Remontoi tästä itsellesi tai sijoitukseen kiva koti! 
Kohdetta myy

Taru VähäkangasKiinteistönvälittäjä LKV, LVV, KiLATtaru.vahakangas@asuntokauppalkv.fi+358 400 857 013
Asuntokauppa Hanna&Hanna LKV Oy, NummelaY-tunnus: 2635442-1Keskikuja 4
03100 Nummelainfo@asuntokauppalkv.fi+358 40 571 4764
03100 Nummelainfo@asuntokauppalkv.fi+358 40 571 4764
Esittely
Kohteen seuraavaa esittelyajankohtaa ei ole tiedossa
Perustiedot
39280289
39280289
Vihti, Nummela
Loiskaajantie 12
03100 Vihti
Loiskaajantie 12
03100 Vihti
Kerrostalo
Ei
Omistusasunto
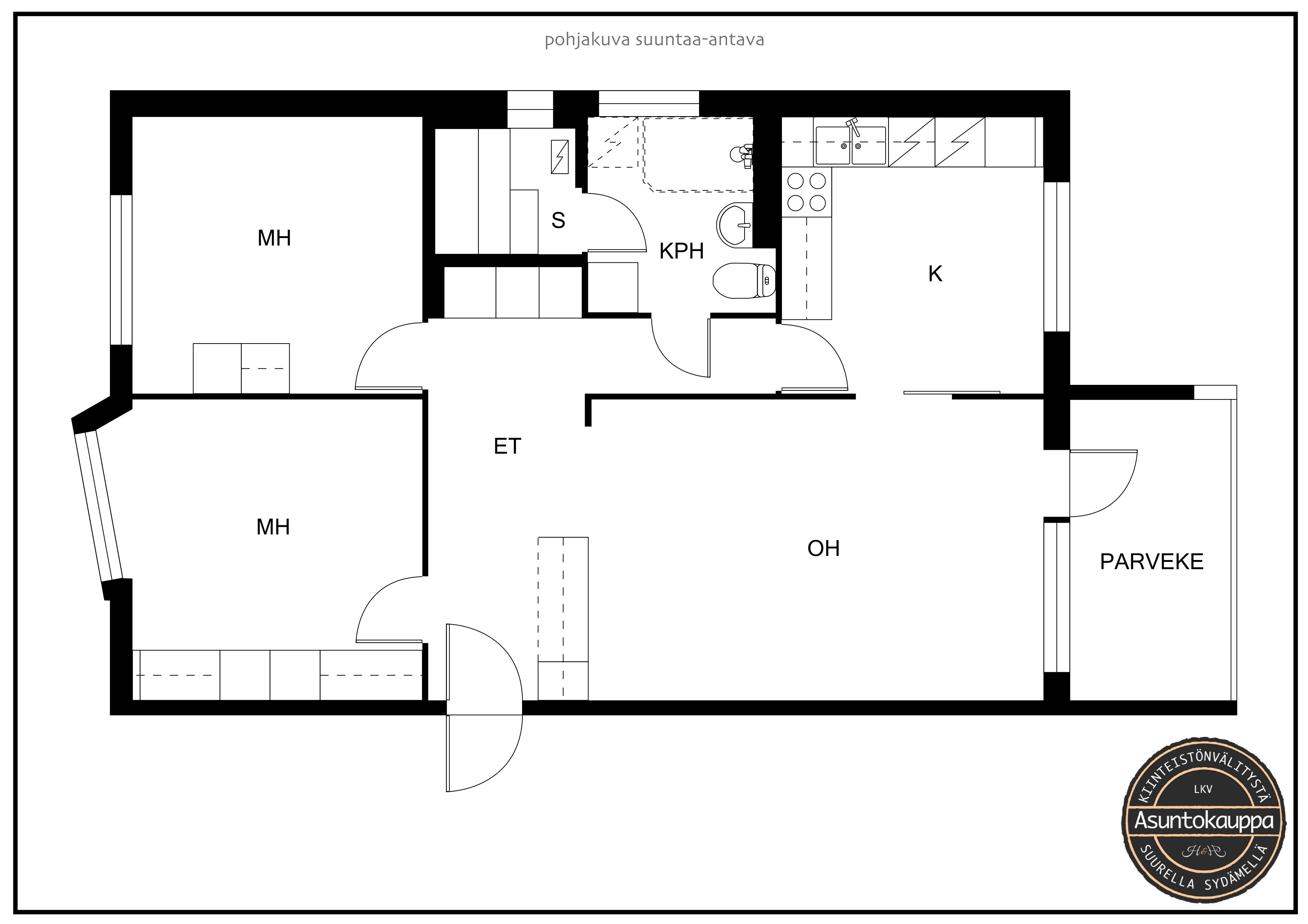
3h, k, kph, s, parveke
3
77 m²
Yhtiöjärjestyksen mukainen, Isännöitsijäntodistuksen mukainen
1/3
1
1985
1985
Heti
Hinta ja kustannukset
119 000 €
103 794,40 €
15 205,60 €
1 545,45 € / m²
Laskettu velattomasta myyntihinnasta.
Laskettu velattomasta myyntihinnasta.
465,85 € / kk
Hoitovastike 308 € / kk
Rahoitusvastike 157,85 € / kk
Hoitovastike 308 € / kk
Rahoitusvastike 157,85 € / kk
20 € / kk / hlö
Tasataan 5,49 €/m3 hinnoittelulla.
Tasataan 5,49 €/m3 hinnoittelulla.
Tasataan 5,49 €/m3 hinnoittelulla.
Tasataan 5,49 €/m3 hinnoittelulla.
Ulkoautopaikka sähköpistokkeella: 10 €/kk
Lisätiedot
Ei
Ulostyönnetty parveke
Ilmansuunta: itä
Ilmansuunta: itä
Asunnossa on sauna
Saunan lauteet, saunapaneeli
Varusteet: sähkökiuas
Lattian pintamateriaali: laatta
Saunan lauteet, saunapaneeli
Varusteet: sähkökiuas
Lattian pintamateriaali: laatta
Tyydyttävä
2018: Märkätilat peruskorjattu taloyhtiön toimesta
Sähkölämmitys
Lämmönjakotapa: sähköpatterilämmitys
Lämmönjakotapa: sähköpatterilämmitys
Koneellinen poisto
Antenni-TV
Asunnon tilat ja materiaalit
Pääasiallinen rakennusmateriaali: Betoni
Jääkaappipakastin, sähköliesi, liesituuletin hormiin, kaapistot
Seinien pintamateriaali: maalattu
Lattian pintamateriaali: muovi
Seinien pintamateriaali: maalattu
Lattian pintamateriaali: muovi
Seinien pintamateriaali: maalattu, tapetti
Lattian pintamateriaali: parketti
Lattian pintamateriaali: parketti
Seinien pintamateriaali: tapetti
Lattian pintamateriaali: muovi
Makuuhuoneiden määrä: 2
Lattian pintamateriaali: muovi
Makuuhuoneiden määrä: 2
Kylpyhuone, suihku, allas, peilikaappi, pesukoneliitäntä
Seinien pintamateriaali: kaakeli
Lattian pintamateriaali: laatta
Seinien pintamateriaali: kaakeli
Lattian pintamateriaali: laatta
Kylpyhuoneen yhteydessä
Kellari tai kellarikomero
Katto: Harjakatto
Katon pintamateriaali: Huopakate
Katon pintamateriaali: Huopakate
Taloyhtiö
Asunto Oy Vihdinvarsi
Huoneistokohtainen varasto
19
2025: Ilmalämpöpumppujen kondenssivesijärjestelmä saattolämmityksellä asennettu
2024: Syöksyputket uusittu
2022: Energiaremontti: yleisiin tiloihin asennettu ilmalämpöpumput, 3 kpl Mitsubishi FT 25. Katolle asennettu 20,50 kWp aurinkovoimala. Yleisten tilojen valaistus LED-valaisimilla. Sähköpattereiden etähallintalaitteet. Vakiopaineventtiili käyttövesiverkkoon.
2020: Jäteastiakuorien hankinta
2018: Märkätilojen peruskorjaus 9 kpl, ikkunat ja parvekeovet uusittu, ilmanvaihdon kunnostus (huippuimurit uusittu), lämmityspatterit uusittu
2016: Puiden kaatoa
2015: Piha-aitojen maalaus, ulko-ovien lukituksen muutos
2014: Pyörävaraston luiska, pihavalojen uusinta
2012: Julkisivujen elementtisaumojen uusiminen
2011: Parvekelinjojen betonipintojen kunnostus ja maalaus
2008: Ilmanvaihdon puhdistus ja säätö
2024: Syöksyputket uusittu
2022: Energiaremontti: yleisiin tiloihin asennettu ilmalämpöpumput, 3 kpl Mitsubishi FT 25. Katolle asennettu 20,50 kWp aurinkovoimala. Yleisten tilojen valaistus LED-valaisimilla. Sähköpattereiden etähallintalaitteet. Vakiopaineventtiili käyttövesiverkkoon.
2020: Jäteastiakuorien hankinta
2018: Märkätilojen peruskorjaus 9 kpl, ikkunat ja parvekeovet uusittu, ilmanvaihdon kunnostus (huippuimurit uusittu), lämmityspatterit uusittu
2016: Puiden kaatoa
2015: Piha-aitojen maalaus, ulko-ovien lukituksen muutos
2014: Pyörävaraston luiska, pihavalojen uusinta
2012: Julkisivujen elementtisaumojen uusiminen
2011: Parvekelinjojen betonipintojen kunnostus ja maalaus
2008: Ilmanvaihdon puhdistus ja säätö
Kunnossapitotarveselvitys 2025-2029:
2025: Palovaroittimien uusinta yhtiön vastuulle (päätös tehty), märkätilakartoitus (korjaukset tarvittaessa, aikataulua ei ole päätetty), ikkunoiden raitisilmansuodattimien vaihto, kahden männyn kaato.
2026: Aitojen uusiminen (aikataulua ei päätetty).
2027: Etupihan kunnostus, piha-alueen muutos/kunnostustyöt, asfaltoinnin uusiminen (aikataulua ei ole päätetty), lukituksen uusiminen, huoneisto-ovien uusiminen (aikataulua ei päätetty).
2025: Palovaroittimien uusinta yhtiön vastuulle (päätös tehty), märkätilakartoitus (korjaukset tarvittaessa, aikataulua ei ole päätetty), ikkunoiden raitisilmansuodattimien vaihto, kahden männyn kaato.
2026: Aitojen uusiminen (aikataulua ei päätetty).
2027: Etupihan kunnostus, piha-alueen muutos/kunnostustyöt, asfaltoinnin uusiminen (aikataulua ei ole päätetty), lukituksen uusiminen, huoneisto-ovien uusiminen (aikataulua ei päätetty).
Retta Isännöinti Oy
Heli Puro
heli.puro@retta.fi
+358102282000
Heli Puro
heli.puro@retta.fi
+358102282000
Huoltoyhtiö
Palpen Oy
Palpen Oy
F2018
Energiatodistuksen viimeinen voimassaolopäivä 05.04.2033
2 850 m²
Oma
Asemakaava
Vihdin kunta / kaavoitus
Vihdin kunta / kaavoitus
Muut lisätiedot
Ulkoautopaikat sähköpistokkeella: 19
Asunnon käytössä olevat autopaikat: ulkoautopaikka sähköpistokkeella
Jokaiselle huoneistolle kuuluu yksi autopaikka.
Asunnon käytössä olevat autopaikat: ulkoautopaikka sähköpistokkeella
Jokaiselle huoneistolle kuuluu yksi autopaikka.
Länsi, itä
Koulut: Kuoppanummen koulu (1-9lk.) 400 m, Luksia ammattikoulu 550 m, Vihdin lukio 850 m
Päiväkodit: Kuoppanummen päiväkoti 400 m, Pajuniityn päiväkoti (myös 24 h) 1,40 km, Etelä-Nummelan päiväkoti ja Daghemmet Aleksandra 2,40 km
Kaupat: Sale Nummela 240 m, K-Supermarket Nummela 850 m, LIDL Nummela 900 m, Prisma ja K-Citymarket Nummela 1,60 km
Lähin linja-autopysäkki n. 240 m
Linja-autoasema 1 km (kävellen)
Päiväkodit: Kuoppanummen päiväkoti 400 m, Pajuniityn päiväkoti (myös 24 h) 1,40 km, Etelä-Nummelan päiväkoti ja Daghemmet Aleksandra 2,40 km
Kaupat: Sale Nummela 240 m, K-Supermarket Nummela 850 m, LIDL Nummela 900 m, Prisma ja K-Citymarket Nummela 1,60 km
Lähin linja-autopysäkki n. 240 m
Linja-autoasema 1 km (kävellen)







