Kodikas v. 2012 valmistunut omakotitalo viihtyisässä ympäristössä Sammatissa!
-Yksitasoinen talo tilavalla 1404 m² tontilla
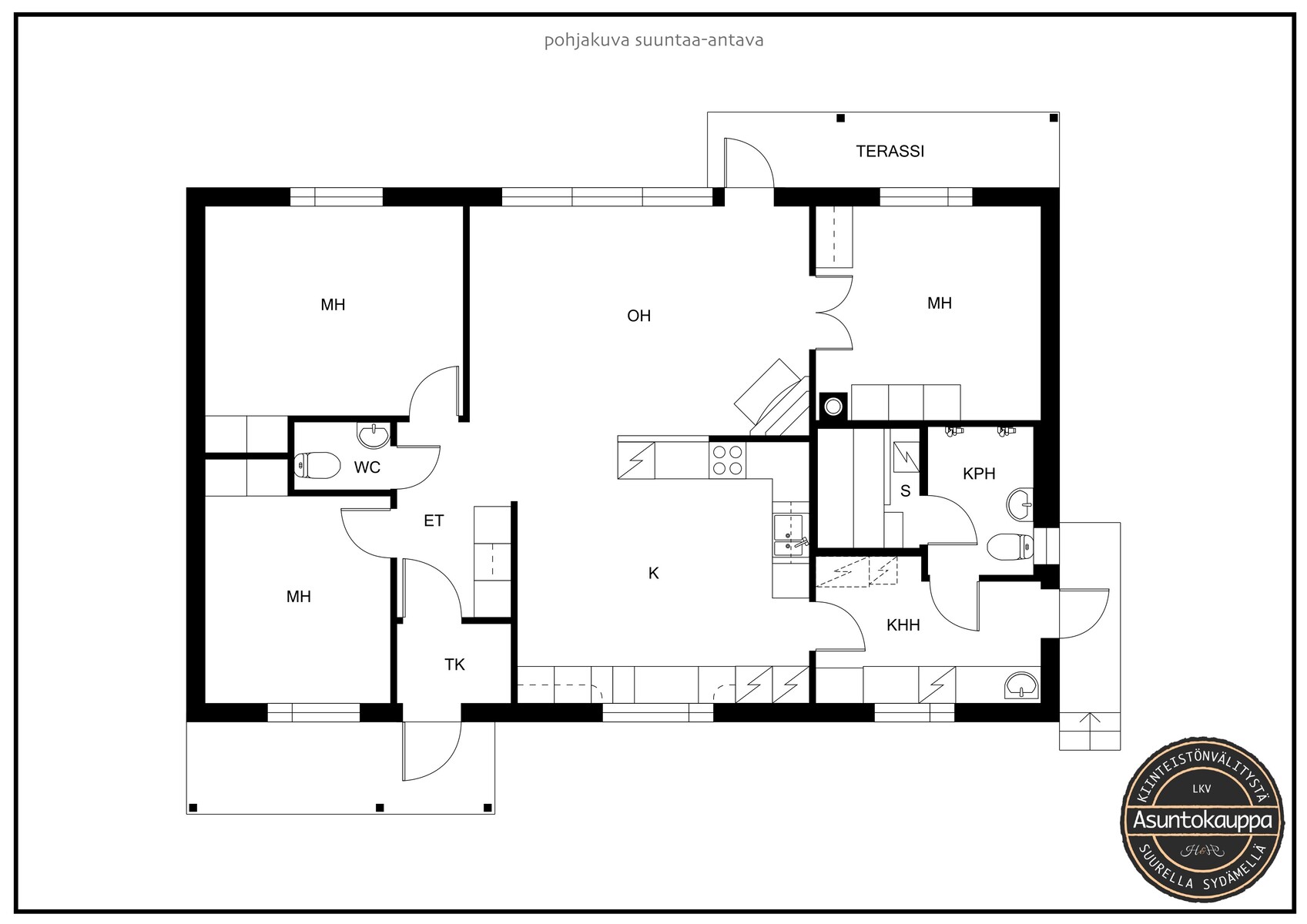
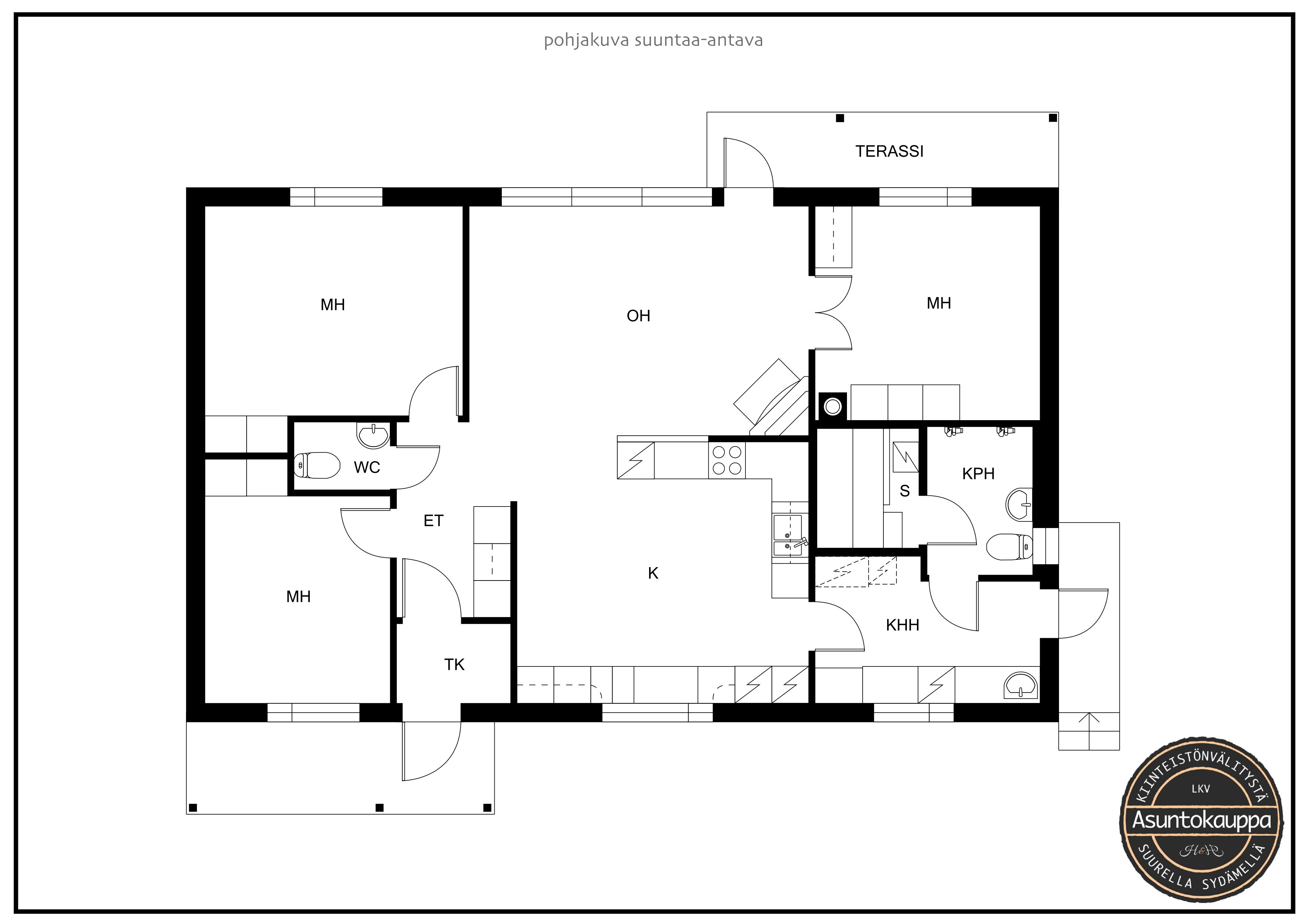
-Hyvä pohjaratkaisu, mukavan kokoiset huoneet ja oleskelutilat
-Erittäin energiatehokas talo, lämmitysmuotona PILP ja varaava takka
-Aurinkopaneelit katolla tuottamassa energiaa
-Lisäksi autotalli/varastorakennus, huvimaja ja pihavarasto
-Etupiha asfaltoitu, takapiha nurmialuetta
-Reilun kokoinen ja aurinkoinen terassi olohuoneen jatkeena
-Koulu ja kauppa lähietäisyydellä, Helsinkiin matkaa n. 50-60min
Varaa oma esittelyaikasi:
OSKARI KOKKILA, LKV, LVV
040 540 0566
oskari.kokkila@asuntokauppalkv.fi 
Kohdetta myy
Asuntokauppa Hanna&Hanna LKV Oy, NummelaY-tunnus: 2635442-1Keskikuja 4
03100 Nummelainfo@asuntokauppalkv.fi+358 40 571 4764
03100 Nummelainfo@asuntokauppalkv.fi+358 40 571 4764
Esittely
Kohteen seuraavaa esittelyajankohtaa ei ole tiedossa
Perustiedot
40112666
40112666
Lohja, Sammatti
Hiihtäjäntie 7
09220 Lohja
Hiihtäjäntie 7
09220 Lohja
Omakotitalo
Ei
Omistusasunto
4h, k, s, khh, at
4
108 m²
15 m²
123 m²
Rakennuspiirrustusten mukaan kiinteistön huoneistoala on 108 m² ja kokonaisala 123 m². Pinta-aloja ei ole tarkistusmitattu. Asuinpinta-alaa ei ole mitattu.
2012
2012
Neuvoteltavissa
Hinta ja kustannukset
259 000 €
259 000 €
2 398,15 € / m²
Laskettu velattomasta myyntihinnasta.
Laskettu velattomasta myyntihinnasta.
Kiinteistövero 335,18 e/vuosi
Kokonaissähkönkulutus n. 12 000 kWh/vuosi
Kokonaissähkönkulutus n. 12 000 kWh/vuosi
Lisätiedot
Asunnossa on sauna
Varusteet: sähkökiuas, lattialämmitys
Seinien pintamateriaali: puu
Lattian pintamateriaali: laatta
Varusteet: sähkökiuas, lattialämmitys
Seinien pintamateriaali: puu
Lattian pintamateriaali: laatta
Takapiha nurmea, etupiha asfaltoitu. Takapihalla huvimaja sekä varasto/liiterirakennus
Kyllä
Varaava takka
Hyvä
Ilmanvaihto: kanavat puhdistettu 2014,2019,2024
Nilan pilpin kontaktorit vaihdettu 2017,2019
Suoja-anodi vaihdettu 2018,2021,2024
Asfaltointi 2015
Aurinkopaneelit 2016
Liesi ja astianpesukone uusittu 2020
Kiuas uusittu 2021
Palovarottimet uusittu 2023
Talon ja osan ulkorakennuksien maalaus 2023-2024
Tiilikaton puhdistus ja sammaleen poistoaineen laitto 2025
Nuohous suoritettu vuosittain.
Nilan pilpin kontaktorit vaihdettu 2017,2019
Suoja-anodi vaihdettu 2018,2021,2024
Asfaltointi 2015
Aurinkopaneelit 2016
Liesi ja astianpesukone uusittu 2020
Kiuas uusittu 2021
Palovarottimet uusittu 2023
Talon ja osan ulkorakennuksien maalaus 2023-2024
Tiilikaton puhdistus ja sammaleen poistoaineen laitto 2025
Nuohous suoritettu vuosittain.
B2018
Poistoilmalämpöpumppu
Lämmönjakotapa: vesikiertoinen lattialämmitys
PILPissä myös viilennys ominaisuus
Lämmönjakotapa: vesikiertoinen lattialämmitys
PILPissä myös viilennys ominaisuus
Kunnan vesijohto
Kunnan
Koneellinen poisto, koneellinen tulo, lämmönttalteenotto
Kaapeli-TV
Asunnon tilat ja materiaalit
Pääasiallinen rakennusmateriaali: Puu
Varusteet: jääkaappi, pakastin, astianpesukone, liesituuletin hormilla, induktioliesi
Seinien pintamateriaali: maalattu
Lattian pintamateriaali: laminaatti
Seinien pintamateriaali: maalattu
Lattian pintamateriaali: laminaatti
Seinien pintamateriaali: maalattu
Lattian pintamateriaali: laminaatti
Lattian pintamateriaali: laminaatti
Seinien pintamateriaali: maalattu
Lattian pintamateriaali: laminaatti
Makuuhuoneiden määrä: 3
Lattian pintamateriaali: laminaatti
Makuuhuoneiden määrä: 3
Varusteet: kaksi suihkua, lattialämmitys, kiinteät valaisimet, peili
Seinien pintamateriaali: kaakeli
Lattian pintamateriaali: laatta
Seinien pintamateriaali: kaakeli
Lattian pintamateriaali: laatta
Varusteet: lattialämmitys, peili, peilikaappi, allaskaappi
Seinien pintamateriaali: maalattu
Lattian pintamateriaali: laatta
Seinien pintamateriaali: maalattu
Lattian pintamateriaali: laatta
Varusteet: pesukoneliitäntä, lattialämmitys, lattiakaivo, pöytätaso, pesuallas, uloskäynti
Seinien pintamateriaali: maalattu
Lattian pintamateriaali: laatta
Seinien pintamateriaali: maalattu
Lattian pintamateriaali: laatta
Katto: Harjakatto
Katon pintamateriaali: Tiilikate
Katon pintamateriaali: Tiilikate
Asunnon tontti
444-476-1-442
K71 T4
1 404 m²
Tasamaa
Oma
Asemakaava
Autotalli
Autotalli/katos
Puuliiteri
Muut rakennukset
Autotalli/katos
Puuliiteri
Muut rakennukset
Kyllä
Muut lisätiedot
Sähköliittymä, vesiliittymä
Verhotangot, kiinteät valaisimet

















