Puistoalueen reunaan rajoittuvalla kulmatontilla sijaitseva, kauniisti remontoitu omakotitalo etsii uusia asukkaitaan!
KUNTOTARKASTETTU 6/2023!
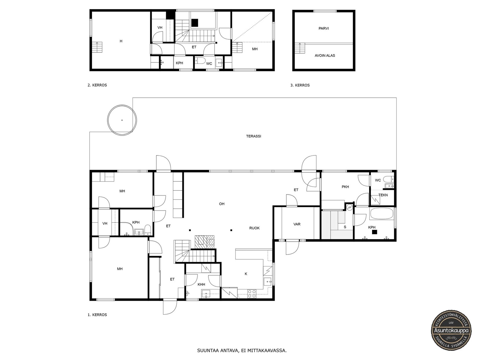
Koti on vuonna 2008 rakennettu puolitoistakerroksinen omakotitalo, jossa on modernit energiaratkaisut ja käytännöllinen pohjaratkaisu. Alakerrassa on korkea ja avara olohuone, vuonna 2021 remontoitu keittiö, tilava arkieteinen, kaksi makuuhuonetta, kylpyhuone, erillinen WC sekä saunaosasto pukuhuoneineen. Yläkerrasta löytyvät kaksi makuuhuonetta, omat vaatehuoneet, kylpyhuone ja erillinen WC. Koko talon parkettilattiat on uusittu vuonna 2022.
Lämmityksestä huolehtivat vesi-ilmalämpöpumppu ja vesikiertoinen lattialämmitys, lisäksi talossa on ilmalämpöpumppu ja varaava takka. 7 kWp aurinkopaneelit tukevat energiatehokasta asumista.
Oma kulmatontti rajoittuu metsään ja tarjoaa suojaisan aidatun pihan, jossa on vehreät näkymät ja turvallinen tila lapsille ja lemmikeille. Tontilla on valokuituyhteys ja autokatos.
Otalampi on viihtyisä ja rauhallinen asuinalue Vihdissä. Alueella on koulu, päiväkoti, kauppa ja uimaranta, ja ympäröivä luonto tarjoaa loistavat mahdollisuudet ulkoiluun ja harrastuksiin. Hyvät kulkuyhteydet takaavat sujuvan liikkumisen myös pääkaupunkiseudulle.
Tervetuloa tutustumaan!
Asuntoportaalien tiedot ovat rajalliset. Tilaa virallinen myyntiesite välittäjältä. 
Kohdetta myy

03100 Nummelainfo@asuntokauppalkv.fi+358 40 571 4764
Esittely
Perustiedot
Lauri Viljasen kuja 10
03300 Vihti
Kaksi kuukautta kaupanteosta.
Hinta ja kustannukset
Laskettu velattomasta myyntihinnasta.
Puhtaanapito: Rosk´n Rollin hinnaston mukaisesti
Sähkönkulutus: n. 12 600 kWh/vuosi, aurinkopaneelit tuottanut noin 5000 kWh/vuosi.
Lisätiedot
Saunan lauteet
Varusteet: sähkökiuas
Seinien pintamateriaali: paneeli
Lattian pintamateriaali: laatta
Ilmansuunta: kaakko
2022 terassi uusittu
2023: takapiha aidattu.
2022: katot pesty, julkisivut pesty ja maalattu, rännit uusittu, kattoturvatuotteet uusittu, terassi uusittu, palju asennettu, parketti lattiat uusittu.
2021: asennettu aurinkopaneelit, kaikki seinät maalattu, keittiö remontoitu koneineen, kodinhoitohuoneen kalusteet vaihdettu, vaatekaapistot uusittu, allaskaapit ja peilit uusitu kylpyhuoneisiin, saunanpaneelit käsitelty ja kiuas uusittu.
Lämmönjakotapa: ilmalämpöpumppu, vesikiertoinen lattialämmitys
Ilmavesilämpöpumppu (2021), varaava takka, ilmavesilämpöpumppu (2022), aurinkopaneelit (2021) 18 kpl 7 kWp (mahdollisuus 11 kWp)
Asunnon tilat ja materiaalit
Varusteet:
Seinien pintamateriaali: maalattu
Lattian pintamateriaali: laatta
Lattian pintamateriaali: parketti
Lattian pintamateriaali: parketti
Makuuhuoneiden määrä: 4
Seinien pintamateriaali: kaakeli
Lattian pintamateriaali: laatta
Lattian pintamateriaali: laatta
Seinien pintamateriaali: maalattu
Lattian pintamateriaali: laatta
Katon pintamateriaali: Peltikate
Asunnon tontti
Muut lisätiedot
Päiväkodit: Otalammen päiväkoti 0,60 km
Ruokakaupat: S-Market Otalampi 0,85 km
Liikenneyhteydet: Lähin linja-autopysäkki 0,85 km
Muut lähipalvelut: Otalammen uimaranta 1,70 km, Vihdin kirkonkylän monipuoliset palvelut n. 11 km, Nummelan keskustan monipuoliset palvelut n. 15 km























