Etelä-Nummelan suositulla asuinalueella vuonna 2012 valmistunut talo.
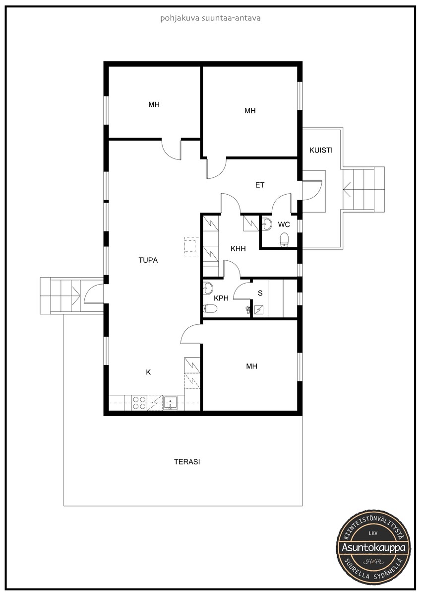
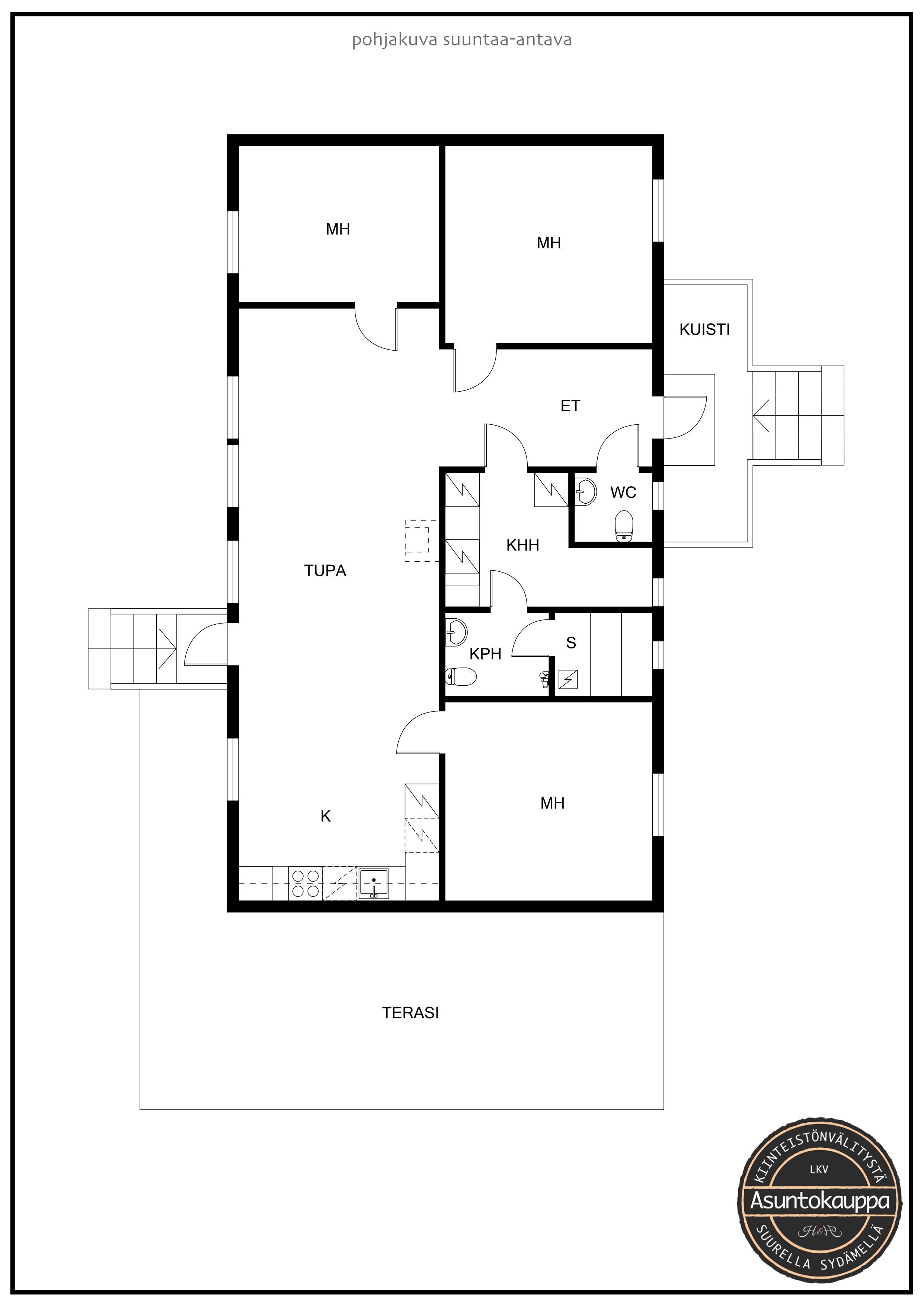
– Toimiva pohjaratkaisu, jossa valoisat tilat yhdessä tasossa.
– Lähes 40 m² tupakeittiössä mahtuu hyvin ruokailemaan ja oleskelemaan.
– Kotia on pidetty huolellisesti ja tarpeen mukaan päivitetty vuosien varrella.
– Keittiön kaapistot uusittu vuonna 2017.
– Vuonna 2015 asennettu Nunnauunin varaava takka haudutusuunilla, joka luo kodikkaan tunnelman perheen yhteisiin hetkiin.
– Vesikiertoinen lattialämmitys sähköllä sekä ilmalämpöpumppu.
– Ulkoverhoilu on juuri uusittu kesällä 2025.
– Oma 983 neliön tontti tarjoaa perheen lapsille turvallista leikkitilaa.
– Kiramin palju takaterassilla ja leikkimökki tuovat lisää elämyksiä perheen vapaa-aikaan.
Pilke liikuntapäiväkoti on vain kolmensadan metrin päässä, Etelä-Nummelan koulukeskus kilometrin etäisyydellä. Nummelan keskustan monipuoliset palvelut löytyvät muutaman kilometrin säteeltä.
Tule tutustumaan tähän ihastuttavaan kotiin – varaa esittelyaika jo tänään!
Hanna Johansson YKV, LKV
0405714764
hanna.johansson@asuntokauppalkv.fi 
Kohdetta myy

03100 Nummelainfo@asuntokauppalkv.fi+358 40 571 4764
Esittely
Perustiedot
Linnanniituntie 30
03100 Vihti
Hinta ja kustannukset
Laskettu velattomasta myyntihinnasta.
Lisätiedot
Saunan lauteet, kuusi, saunapaneeli (vahattu tummaksi)
Varusteet: sähkökiuas
Seinien pintamateriaali: paneeli
Lattian pintamateriaali: laatta
Naapurin kanssa yhteinen pensasaita rajalla.
Ilmansuunta: pohjoinen, etelä
Etuterassi etelän suuntaan, takaterassi pohjoisen puolella.
Nunnauuni Hestia 2, haudutusuunilla.
- 2017 Keittiön kaapistot uusittu, samalla muut kodinkoneet paitsi jääkaappi ja pakastin, kodinkoneet integroituja, talon sisäseiniä maalattu tarpeen ja mieltymyksen mukaan.
- 2024 yhden makuuhuoneen seinä tapetoitu
- 2025 kesällä vaihdettu ulkoverhoilulaudoitus ja maalattu kahteen kertaan
Lämmönjakotapa: ilmalämpöpumppu, vesikiertoinen lattialämmitys
Parmair (iiwari) -ilmanvaihtokone.
Digiantenni.
Asunnon tilat ja materiaalit
Vaakapanelointi 140 mm
Varusteet: jääkaappi, pakastin, astianpesukone, mikroaaltouuni, induktioliesi, erillisuuni
Seinien pintamateriaali: maalattu
Lattian pintamateriaali: laminaatti
Rosenlew
Rosenlew
Junker
Junker kiertoilmauuni
Lattian pintamateriaali: laminaatti
Lattian pintamateriaali: laminaatti
Makuuhuoneiden määrä: 3
Seinien pintamateriaali: kaakeli
Lattian pintamateriaali: laatta
Seinien pintamateriaali: maalattu
Lattian pintamateriaali: laatta
Tila pesutornille.
Varusteet: pesukoneliitäntä, lattialämmitys, pyykkikaapit, pöytätaso
Seinien pintamateriaali: maalattu
Lattian pintamateriaali: laatta
9 m² erillinen varasto
Katon pintamateriaali: Peltikate
Tiilikuvioitu pelti. Katon kunto on erinomainen. Kattoturvatuotteet Vesivekiltä, lumisesteet edessä ja takana. Takapihan terassilla valokate.
Asunnon tontti
Muut lisätiedot
Padel-kentät n. 1,40 km
Etelä-Nummelan koulukeskus n. 1,20 km.
Nummelan keskustan monipuoliset palvelut n. 2-3 km.



















