Viihtyisä omakotitalo kauniisti hoidetulla tontilla Vihdin Vanjärvellä!
Vuonna 2007 valmistunut 142 m² omakotitalo omassa rauhassa metsän ympäröivällä tontilla, kuitenkin vain pihatien päässä asfaltoidusta Tarrantiestä. Kaksi kilometriä Porintielle, josta pääkaupunkiin suhauttaakin jo kolmessa vartissa.
– Piha on huolellisesti hoidettu, tontilta löytyy kolme kasvihuonetta, marjapensaita, paljon istutuksia.
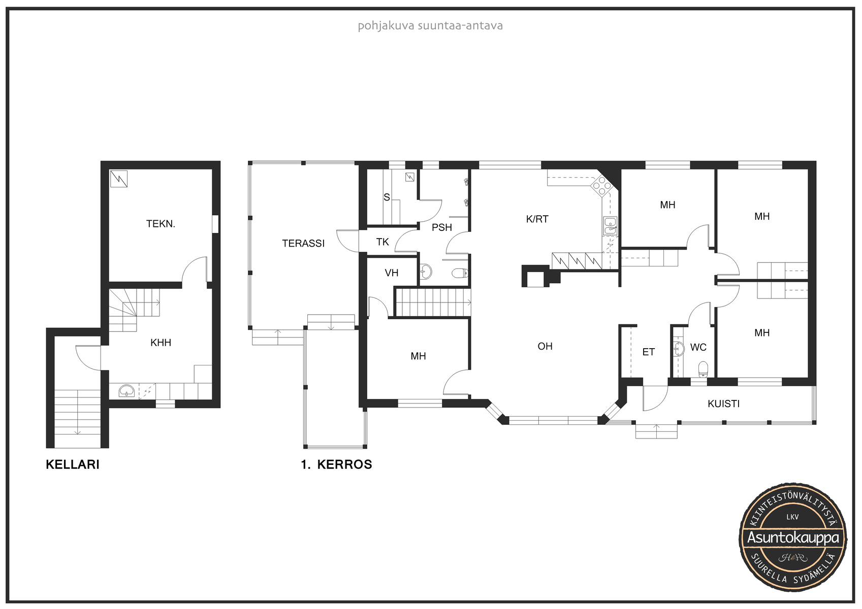
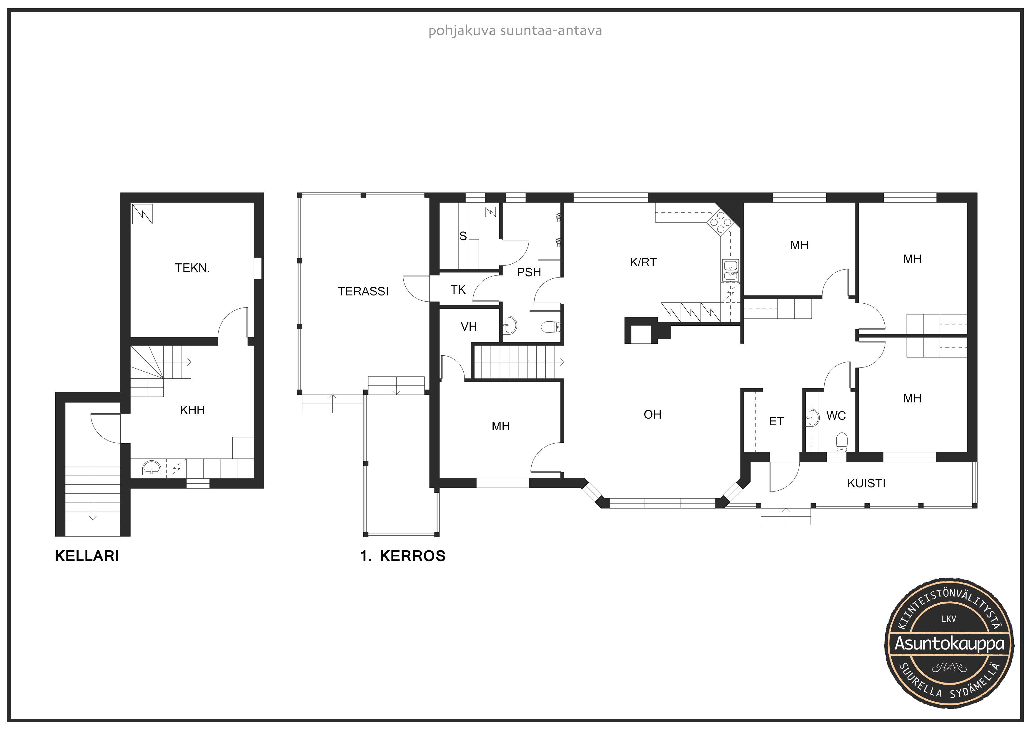
– Tilava pohjaratkaisu, neljä makuuhuonetta, olohuone, keittiö, tilava kph/saunaosasto, josta käynti ulos takaterassille.
– Asuintilat yhdessä tasossa, kellarikerroksesta löytyy kodinhoitohuone ja iso tekninen tila.
– Vesikiertoinen lattialämmitys läpi talon, vesi-ilmalämpöpumppu uusittu 2022
– Lisäksi löytyy 47 m² eristetty autotalli ja varastotila
– Vanjärven päiväkoti ja ala-aste sijaitsevat 3,20 km päässä, koulukyyti on saatavilla.
Varaa oma esittely ja tule ihastumaan tähän kokonaisuuteen!
Erja Vihanto p. 040 6807781
erja.vihanto@asuntokauppalkv.fi

Kohdetta myy
03100 Nummelainfo@asuntokauppalkv.fi+358 40 680 7776
Esittely
Perustiedot
Tarrantie 203 c
03400 Vihti
suosittelemme SFS-standardin 5139 mukaista pinta-alamittausta.
Vapautuu heti kaupanteosta
Hinta ja kustannukset
Laskettu velattomasta myyntihinnasta.
Jätevesien tyhjennys noin 2 krt/ vuodessa 100 €/kerta.
Jäteastian tyhjennys oman sopimuksen mukaan, Rosk`n Rollin hinnaston mukaisesti.
Ei tiemaksua Tarrantiestä.
Lisätiedot
Saunan lauteet
Varusteet: sähkökiuas
Seinien pintamateriaali: paneeli
Lattian pintamateriaali: laatta
uusittu 2022
Kolme kasvihuonetta, uima-altaalle paikka.
Isot terassit talon edessä ja sivuilla. Rv. 2022
Keittiön ja olohuoneenvälissä varaava takka/leivinuuni
IV-kone uusittu 2022
Julkisivumaalaus ja terassien rakennus 2022
Piha-alueet kunnostettu (nurmikko, istutukset, sora) 2022
Kph:n kalusteet uusittu 2023
Saunan kiuas uusittu 2023
Keittiön kodinkoneet uusittu 2022
Lattialaminaatit uusittu 2024
Kellarikerroksen khh ja tekninen tila rakennettu 2023
Lämmönjakotapa: vesikiertoinen lattialämmitys
Hyvä, tutkittu 13.3.2025
Green pack sako plus 1, pienpuhdistamo
Antenni ei toimi, Canal Digital lautasantenni 19 €/kk.
Asunnon tilat ja materiaalit
Seinien pintamateriaali: maalattu
Lattian pintamateriaali: laatta
2022
2022
2022
Lattian pintamateriaali: laminaatti
Makuuhuoneiden määrä: 4
Seinien pintamateriaali: kaakeli
Lattian pintamateriaali: laatta
Seinien pintamateriaali: kaakeli
Lattian pintamateriaali: laatta
Kaapistot, paikka pesukoneelle (pesukoneliitäntä), ovi ulos.
Varusteet: lattialämmitys
Seinien pintamateriaali: kivi, maalattu
Lattian pintamateriaali: laatta
Autotallin yhteydessä varastotila
Katon pintamateriaali: Peltikate
Asunnon tontti
Kiinteistö myydään rasitteista vapaana.
Vihdin kunta kaavoitus
Eristetty autotalli 47 m². (ei lämmönlähdettä)
Muut lisätiedot
Kirkonkylän koulut noin 10 km. (koulukyyti)
Lukio Karkkila/ Nummela 10 km./19km.
Ruokakaupat lähin Karkkila masuuni 8,50 km, muut noin 12 km.
Nummelan isot marketit noin 19 km.


















