Täyteen varatulle Etelä-Nummelan Hakalanrinteen asuinalueelle rakentuu uusi yksitasoinen omakotitalo!
Avarat oleskelutilat ja tilavat makuuhuoneet luovat toimivan pohjaratkaisun perheelliselle ilman hukkaneliöitä. Pohjaratkaisua on myös mahdollista muokata vielä omaan tarpeeseen sopivammaksi, kysy rohkeasti lisää!
Rakentajana toimii Castro Kodit Oy, jonka kanssa asiakas solmii urakkasopimuksen talon rakentamiseen. Urakkasopimuksen sisältö on erittäin kattava ja ei ostajan tarvitsekaan huolehtia mm. rakennuslupien hausta, maatöistä, rakennusaikaisien sähköjen kustannuksista tai pihojen teosta. Ostaja voi keskittyä suunnittelemaan mieleisensä kokonaisuuden sisustussuunnittelijan kanssa. Talo on muuttovalmis n. 6-7kk rakennustöiden aloituksesta. Urakkasopimuksella säästyt myös varainsiirtoveron maksulta!
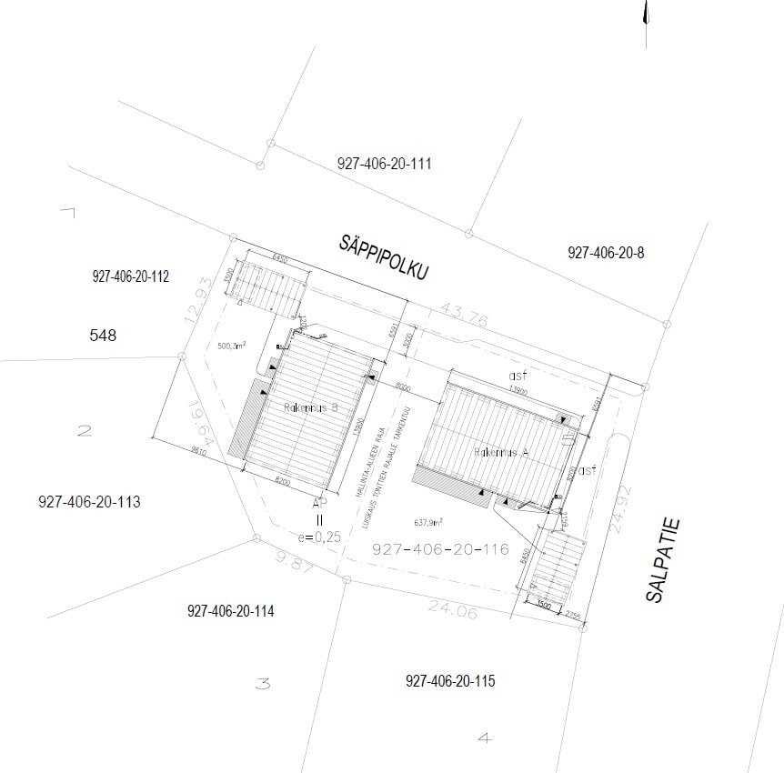
Talo rakentuu valinnaiselle vuokratontille, joka on mahdollista lunastaa omaksi Vihdin kunnalta mikäli lunastus tehdään yhtäaikaisesti A-talon kanssa. Myytävän B-talon hallinta-alue on 500 m². Koko kiinteistön 1138 m² lunastushinta on 72 550 €, josta nyt myytävän puolikkaan hinta on 36 275 €.
Asuinalueeseen ja rakennuttajan työn jälkeen on mahdollista tutustua viereisessä jo valmiissa kohteessa. Soita ja sovi oma esittelyaikasi!
Lisätiedot ja esittelyt:
Taru Vähäkangas
040 085 7013
taru.vahakangas@asuntokauppalkv.fi 
Kohdetta myy

03100 Nummelainfo@asuntokauppalkv.fi+358 40 680 7776
Esittely
Perustiedot
Salpatie 15 B
03100 Vihti
Valmistuminen n. 6-7kk rakennustöiden aloituksesta.
Hinta ja kustannukset
Laskettu velattomasta myyntihinnasta.
Kiinteistövero: määräytyy rakennuksen valmistuttua
Vesimaksu: Kulutuksen mukaan, Vihdin veden hinnaston mukaisesti
Jätemaksu: Rosk´n rollin hinnaston mukaisesti
Sähkönkulutus arvio: n. 13000-14000kWh/vuosi
Lisätiedot
Lämpöhaapa paneeli, lämpöhaapa lauteet, Harvia Clindro -kiuas, led-nauha valaistus
Seinien pintamateriaali: paneeli
Lattian pintamateriaali: laatta
Ilmansuunta: etelä
Lämmönjakotapa: vesikiertoinen lattialämmitys
Poistoilmalämpöpumppu NIBE F470. Lisähinnasta lisättävissä varaava-/kevyt takka sekä ilmalämpöpumppu.
Asunnon tilat ja materiaalit
Varusteet:
Seinien pintamateriaali: maalattu
Lattian pintamateriaali: laminaatti
Lattian pintamateriaali: laminaatti
Seinien pintamateriaali: maalattu
Lattian pintamateriaali: laminaatti
Makuuhuoneiden määrä: 3
Seinien pintamateriaali: kaakeli
Lattian pintamateriaali: laatta
Erillinen wc: Allaskaappi, peilikaappi led-valolla, pesuallashana Oras Safira 1004 bideellä
Lattian pintamateriaali: laatta
Seinien pintamateriaali: maalattu
Lattian pintamateriaali: laatta
Lämmin ulkovarasto autokatoksen yhteydessä.
Katon pintamateriaali: Peltikate
Asunnon tontti
Kiinteistö jaetaan hallinnanjakosopimuksella. Myytävän kiinteistön hallinta-alue on 500 m². Tontti on valinnainen vuokratontti ja tonttiosuus on lunastettavissa omaksi Vihdin kunnalta mikäli lunastus tehdään yhtäaikaisesti A-talon kanssa. Koko tontin lunastushinta on n. 72 550 € ja B-talon osuus tästä puolet eli n. 36 275 €.
1813.75 €/v
Vihdin kunta / kaavoitus
Yhden auton autokatos sekä lämmin varasto
Muut lisätiedot
Päiväkodit: Etelä-Nummelan päiväkoti 2 km, Daghemmet Aleksandra 2 km, Pajuniityn päiväkoti (myös 24 h) 2,60 km, Kuoppanummen päiväkoti 3,70 km
Kaupat: Prisma Nummela 2,80 km, K-Citymarket Nummela 2,70 km
Lähin linja-autopysäkki n. 500 m
Linja-autoasema 2,70 km





