Moderni ja tyylikäs 2025 valmistunut omakotitalo metsänreunaan rajoittuvalla tontilla Vihdin Hannunmäessä!
-Laadukas Hawon talopaketti, rakentajan takuut vielä voimassa
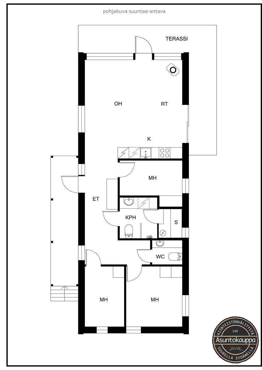
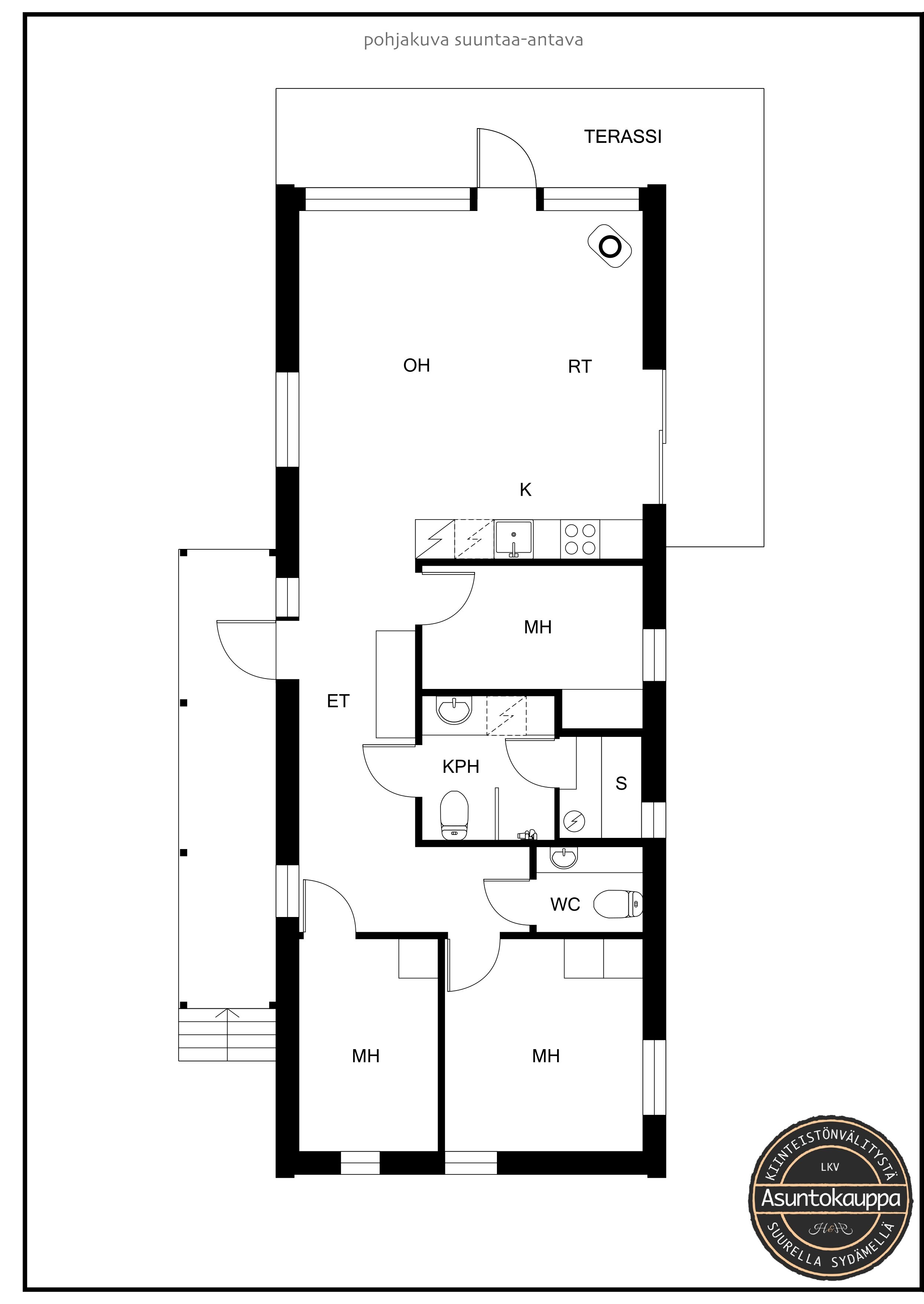
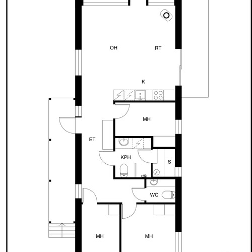
-Asuinpinta-ala 75,50 m², tehokas ja harkittu pohjaratkaisu
-Oleskelutilojen pääty lähes kokonaan ikkunapintaa – upeat, esteettömät näkymät suoraan metsään ja hulppea 4 metrin huonekorkeus
-Suojaisa n. 55 m² L-mallinen terassi
-Kolme makuuhuonetta, joustavasti tilaa esimerkiksi työhuoneelle tai vierashuoneelle
-Kaksi wc:tä lisäävät arjen sujuvuutta
-Soveltuu erinomaisesti pariskunnalle tai pienelle perheelle, joka arvostaa rauhaa ja luonnon läheisyyttä
-Suuri 1 158 m² oma tontti, joka rajoittuu metsään
-Rakennusoikeutta jäljellä yli 100 m², mahdollisuus rakentaa esim. autotalli, talousrakennus tai pihasauna
Tervetuloa ihastumaan tähän upeaan ja valoisaan kokonaisuuteen viihtyisällä Hannunmäen asuinalueella!
Asuntoportaalien tiedot ovat rajalliset. Tilaa virallinen myyntiesite välittäjältä. 
Kohdetta myy

03100 Nummelainfo@asuntokauppalkv.fi+358 40 680 7776
Esittely

Perustiedot
Hannunmäki 10
03400 Vihti
Kuukausi kaupanteosta / neuvoteltavissa.
Hinta ja kustannukset
Laskettu velattomasta myyntihinnasta.
Vesi ja jätevesimaksu: Vihdin veden hinnaston mukaisesti
Jätemaksu: Rosk´n roll hinnaston mukaisesti
Kiinteistövero: 2026 kiinteistövero ei vielä tullut, arvio veron määrästä n. 600 €/vuosi
Lisätiedot
Saunan lauteet, saunapaneeli
Varusteet: sähkökiuas
Seinien pintamateriaali: paneeli
Lattian pintamateriaali: laatta
Ilmansuunta: itä, etelä
n. 55 m² L-mallinen terassi, joka aukeaa kauniisti metsään
Lämmönjakotapa: sähköinen lattialämmitys
Asunnon tilat ja materiaalit
Varusteet:
Lattian pintamateriaali: vinyyli
Lattian pintamateriaali: vinyyli
Lattian pintamateriaali: vinyyli
Makuuhuoneiden määrä: 3
Seinien pintamateriaali: kaakeli
Lattian pintamateriaali: laatta
Erillinen wc: allaskaappi ja valopeili
Seinien pintamateriaali: kaakeli
Lattian pintamateriaali: laatta
Katon pintamateriaali: Peltikate
Asunnon tontti
Muut lisätiedot
Päiväkodit: Metsäpolun päiväkoti 2,60 km, Myrskylänmäen perhekeskus 1,70 km
Kaupat: K-Supermarket Vihti 2,70 km, S-Market Vihti 2,70 km

















