Tervetuloa tutustumaan tähän hyvin pidettyyn kotiin, joka sijaitsee suojaisalla paikalla Vanhan Nummelan asuinalueella.
– Ei seinänaapureita – yhtiömuotoinen erillistalo
– Avara olohuone + saarekkeellinen keittiö
– Varaava takka & käytännöllinen kuraeteinen
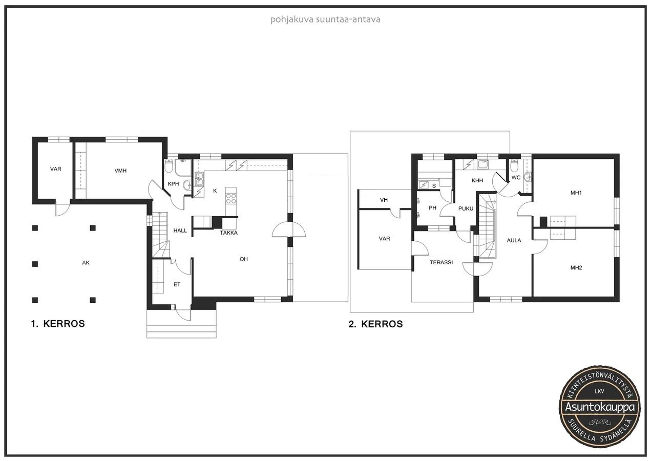
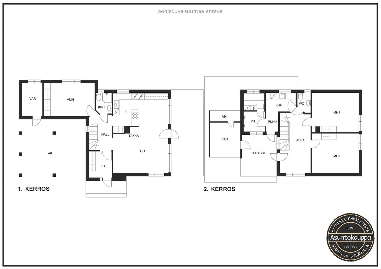
– Neljä makuuhuonetta tarjoavat runsaasti tilaa perheen tai etätyön tarpeisiin – yksi huoneista on varustettu pienillä ikkunoilla eikä kuulu virallisiin asuinneliöihin, mutta on mainio lisätilaratkaisu esimerkiksi työhuoneeksi, vierashuoneeksi tai ihan perinteiseksi makuuhuoneeksi.
– Yläkerrasta löytyy kylpyhuone kahdella suihkulla sekä oma sauna, josta pääsee vilvoittelemaan suojaisalle lasitetulle terassiparvekkeelle – täydellinen paikka rentoutumiseen vuoden ympäri.
– Suojaisa piha + kahden auton autokatos ja lämmin varasto
-Sijainti on erinomainen: Harjun lenkkimaastot alkavat lähes kotiovelta, ja bussipysäkille on vain 250 metrin matka. Koulut ja kaikki tarvittavat palvelut löytyvät kävelyetäisyydeltä.
– Varainsiirtovero vain 1,50 %!
Varaa oma aikasi ja tule tutustumaan tähän kotiin!
Taru Vähäkangas
040 085 7013
taru.vahakangas@asuntokauppalkv.fi 
Kohdetta myy

03100 Nummelainfo@asuntokauppalkv.fi+358 40 571 4764
Esittely

Perustiedot
Lohjantie 47 b
03100 Vihti
Huoneistoala rakennuslupapiirustusten mukaan 129 m². Asuinpinta-alaksi laskemattomia tiloja n. 21 m² edestä johon sisältyy yläkerran yksi huone jossa ei ole täysi korkeat ikkunat, mutta on käytettävissä esim. työhuoneena / makuuhuoneena sekä n. 6 m² kokoinen lämmin varasto. Yhtiöjärjestyksen ja isännöitsijäntodistuksen mukaan pinta-ala-krs m² on 150 m².
Kokonaisala rakennuslupapiirustusten mukaan 150 m².
Kaksi kuukautta kaupanteosta. Nopeampi vapautuminen neuvoteltavissa.
Hinta ja kustannukset
Laskettu velattomasta myyntihinnasta.
Lisätiedot
Ilmansuunta: länsi
Nurmikko, n. 30 m² terassi, tuijia, sireenit, piha vaja, pensas hanhikki
Ilmansuunta: etelä
2024: Terassi uusittu, ilmalämpöpumppu huollettu
2023: Sokkelien huolto ja uusintamaalaus, keskuspölynimuri Beam huollettu, ilmanvaihtokoneen Vallox puhdistus ja moottori uusittu
2022: Vevex oy saunan yhteydessä olevan pesuhuoneen seinien ja lattian huoltotoimenpiteet
2020: Saunan paneelit ja lauteet käsitelty
2019: Ilmalämpöpumppu (Mitsubishi, 5 v) hankittu
2014: Ulkomaalauksen paikkausta
2014: Radonmittaus
2006: Keskuspölynimuri Beam huollettu
Takka nuohottu vuosittain
Katon ja rännien puhdistus joka vuosi
Lämmönjakotapa: ilmalämpöpumppu, sähköinen kattolämmitys, sähköinen lattialämmitys
Osin varaava sähkölämmitys, varaava takka
Asunnon tilat ja materiaalit
Salaojat: On
Perustukset: Maanvarainen betonilaatta
Varusteet:
Seinien pintamateriaali: kaakeli, maalattu
Lattian pintamateriaali: laatta
Lattian pintamateriaali: laminaatti
Seinien pintamateriaali: maalattu
Lattian pintamateriaali: laminaatti
Makuuhuoneiden määrä: 4
Yläkerta: kylpyhuone, 2 x suihku, sauna (vuolukivi sähkökiuas), lattialämmitys, kiinteät valaisimet
Erillinen wc: allaskaappi, peilikaappi, lattialämmitys, kiinteät valaisimet
Seinien pintamateriaali: kaakeli
Lattian pintamateriaali: laatta
Seinien pintamateriaali: kaakeli
Lattian pintamateriaali: laatta
Katon pintamateriaali: Peltikate
Taloyhtiö
5.1. Osakkeenomistajien vastuulla olevat kustannukset
Osakkeenomistajat vastaavat itse niistä rakennus-,
perusparannus-, korjaus-, hoito-, huolto- kunnossapito- ja muista toimenpiteistä aiheutuvista kustannuksista, jotka kohdistuvat heidän hallitsemiinsa huoneistoihin, huoneistopihoihin tai siihen rakennukseen tai sen rakennuksen osaan, joissa heidän hallitsemansa huoneisto sijaitsee. Tästä syystä yhtiön tai osakkeenomistajien ei tarvitse osallistua sellaisten edellä mainittujen kustannusten suorittamiseen, mitkä johtuvat toisten osakkeenomistajien hallitsemista huoneistoista tai huoneistopihoista tai niistä rakennuksista tai rakennusten osista, joissa toisten osakkeenomistajien hallitsemat huoneistot sijaitsevat. Osakkeenomistajat ovat myös velvolliset itse myös kustantamaan huoneistojensa sisäiset maalaus-, puhdistus- ja muut korjaustyöt.
Lohjantie 47 B, 03100 Nummela
Auraus ja hiekoitus tilattu huoltoyhtiöltä, nämä maksetaan yhteisesti talojen kesken.
Vihdin kunta / kaavoitus
Muut lisätiedot
Kahden auton autokatospaikka, talon edessä vielä ulkopaikka, valmius sähköautonlatausasemalle
Päiväkoti: Pajuniityn päiväkoti (24h) 1,10 km, Etelä-Nummelan päiväkoti ja Daghemmet Alexandra 2,10 km, Kuoppanummen päiväkoti 1,20 km
Kaupat: K-Supermarket Nummela 0,80 km, LIDL Nummela 0,95 km, K-Citymarket ja Prisma Nummela 1,50 km




















