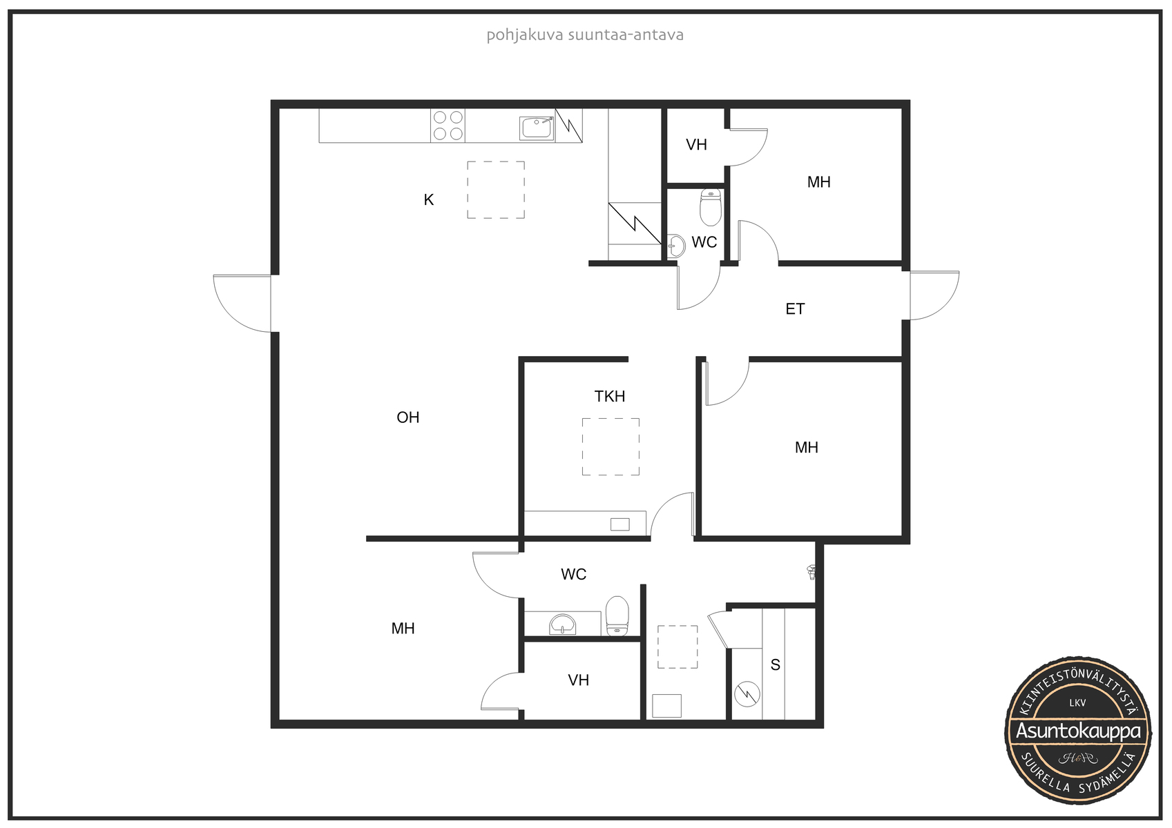
Todella laadukkaasti ja tyylillä remontoitu muuttovalmis koti, jossa tilat yhdessä tasossa.
– A'la Carten keittiö, jossa iso kaasuliesi, aamiaiskaappi, Festivon kotikylmiö ym.
– takkahuone toimii hyvin harraste-/työtilana tai vaikka lasten leikkihuoneena
– putket ja sähköt uusittu remonttien yhteydessä
– pesuhuoneessa väljät tilat myös pyykkihuollolle
– kaksi erillistä WC:tä ja kaksi vaatehuonetta
– suojaisa ja tyylikkäästi uudistettu terassipiha on kokonaan aidattu ja tehty helppohoitoisesta lehtikuusilankusta
Hyvä velaton taloyhtiö!
Sovi oma esittelyaikasi!
Hanna Koponen YKV, LKV
0406807776
hanna.koponen@asuntokauppalkv.fi

Kohdetta myy

Hanna KoponenYrittäjä, Tj, Vastaava hoitaja, Ylempi kiinteistönvälittäjä YKV, LKV, Kaupanvahvistajahanna.koponen@asuntokauppalkv.fi+358 40 680 7776
Asuntokauppa Hanna&Hanna LKV OyY-tunnus: 2635442-1Keskikuja 4
03100 Nummelainfo@asuntokauppalkv.fi+358 40 680 7776
03100 Nummelainfo@asuntokauppalkv.fi+358 40 680 7776
Esittely
Kohteen seuraavaa esittelyajankohtaa ei ole tiedossa
Perustiedot
56243871
56243871
Vihti, Nummela
Lentäjäntie 2
03100 Vihti
Lentäjäntie 2
03100 Vihti
Rivitalo
Ei
Omistusasunto
4h, avokeittiö, takkahuone, s, kph, 2 WC, terassipiha
5
108 m²
108 m²
Yhtiöjärjestyksen mukainen, Isännöitsijäntodistuksen mukainen
1
1976
1976
Hinta ja kustannukset
279 000 €
279 000 €
2 583,33 € / m²
Laskettu velattomasta myyntihinnasta.
Laskettu velattomasta myyntihinnasta.
540 € / kk
Hoitovastike 540 € / kk
Hoitovastike 540 € / kk
41 € / kk / hlö
Lisätiedot
Ei
Asunnossa on sauna
Uusittu v. 2016-2017.
Varusteet: sähkökiuas
Seinien pintamateriaali: puu
Lattian pintamateriaali: laatta
Uusittu v. 2016-2017.
Varusteet: sähkökiuas
Seinien pintamateriaali: puu
Lattian pintamateriaali: laatta
Asunnossa on oma piha
Terassi ja takapiha uusittu kokonaan. Terassi helppohoitoista ja laadukasta lehtikuusta.
Ulkovarasto, lasitettu grillauskatos, aita uusittu ja tehty liukuovi, sähköt ja valaistus uusittu.
Terassi ja takapiha uusittu kokonaan. Terassi helppohoitoista ja laadukasta lehtikuusta.
Ulkovarasto, lasitettu grillauskatos, aita uusittu ja tehty liukuovi, sähköt ja valaistus uusittu.
Kyllä
Takka
Hyvä
2016 kylpyhuone ja wc uusittu, remontti tehtiin taloyhtiön puolesta.
2017 kylpyhuoneen kaato uusittu osittain.
2017 pieni WC remontoitu.
2018 koko asunnon remontti valmistunut, myös sähköt (uusi sähkökaappi).
2018 molemmat ulko-ovet uusittu.
2019 takapiha osa 1 terassi valmis.
2019 ilmalämpöpumppu.
2021 Puutarha 2021 (Design by Onnela).
2022 terassi osa 2 valmis.
2023 takapihan sähköistys ja valaistus.
2024 varaston muutokset ja lasitus.
Toimeksiantaja on tehnyt huoneistossa muutostöitä
Muutostöistä on ilmoitettu taloyhtiölle: Kyllä
Korjauksiin haettu / saatu lupa rakennusvalvontaviranomaiselta: Kyllä
Lopputarkastus tehty: Kyllä
Em. Korjauksiin liittyvät suunitelmat ja asiakirjat toimeksiantajalla: Kyllä
2017 kylpyhuoneen kaato uusittu osittain.
2017 pieni WC remontoitu.
2018 koko asunnon remontti valmistunut, myös sähköt (uusi sähkökaappi).
2018 molemmat ulko-ovet uusittu.
2019 takapiha osa 1 terassi valmis.
2019 ilmalämpöpumppu.
2021 Puutarha 2021 (Design by Onnela).
2022 terassi osa 2 valmis.
2023 takapihan sähköistys ja valaistus.
2024 varaston muutokset ja lasitus.
Toimeksiantaja on tehnyt huoneistossa muutostöitä
Muutostöistä on ilmoitettu taloyhtiölle: Kyllä
Korjauksiin haettu / saatu lupa rakennusvalvontaviranomaiselta: Kyllä
Lopputarkastus tehty: Kyllä
Em. Korjauksiin liittyvät suunitelmat ja asiakirjat toimeksiantajalla: Kyllä
Kyllä
Kaukolämpö
Lämmönjakotapa: ilmalämpöpumppu, vesikiertoinen patterilämmitys, sähköinen lattialämmitys
Lämmönjakotapa: ilmalämpöpumppu, vesikiertoinen patterilämmitys, sähköinen lattialämmitys
Koneellinen poisto
Kaapeli-TV
Asunnon tilat ja materiaalit
Pääasiallinen rakennusmateriaali: Tiili
Rakennusmateriaali: puu, tiili.
Rakennusmateriaali: puu, tiili.
V. 2018 valmistunut laadukas A'la Carte-keittiö, jossa aamiaiskaappi, laadukkaat kodinkoneet.
Varusteet: jääkaappipakastin, kaasuliesi, astianpesukone
Lattian pintamateriaali: laatta
Festivon kotikylmiö
integroitu
Varusteet: jääkaappipakastin, kaasuliesi, astianpesukone
Lattian pintamateriaali: laatta
Festivon kotikylmiö
integroitu
Lattian pintamateriaali: laminaatti
Lattian pintamateriaali: laminaatti
Makuuhuoneiden määrä: 3
Makuuhuoneiden määrä: 3
Uusittu v. 2016-2017.
Varusteet: pesukoneliitäntä, lattialämmitys, suihku, kiinteät valaisimet
Seinien pintamateriaali: kaakeli
Lattian pintamateriaali: laatta
Varusteet: pesukoneliitäntä, lattialämmitys, suihku, kiinteät valaisimet
Seinien pintamateriaali: kaakeli
Lattian pintamateriaali: laatta
Isompi WC uusittu 2016 kylpyhuoneremontin yhteydessä.
Pikku vessa uusittiin kokonaan 2017 (seinät, laatat, kalusteet)
Seinien pintamateriaali: kaakeli
Lattian pintamateriaali: laatta
Pikku vessa uusittiin kokonaan 2017 (seinät, laatat, kalusteet)
Seinien pintamateriaali: kaakeli
Lattian pintamateriaali: laatta
Ulkovarasto, muu
Takapihalla kylmä ulkovarasto. Etupihan puolella lämmin varasto.
Takapihalla kylmä ulkovarasto. Etupihan puolella lämmin varasto.
Katto: Harjakatto
Katon pintamateriaali: Peltikate
Katon pintamateriaali: Peltikate
Taloyhtiö
Asunto Oy Lentoharju
Huoneistokohtainen varasto
Koneellinen poistoilmanvaihto, polkupyöräsuoja, tekninen tila
Koneellinen poistoilmanvaihto, polkupyöräsuoja, tekninen tila
Taloyhtiössä sauna
4
Jätepiste
1982 yläpohja lisäeristetty.
1985 lämpölasit asennettu.
2002 vesikourut uusittu.
2003 kattoikkunat uusittu.
2004 vesikatto uusittu.
2006 ulko-ovet uusittu.
2013 siirrytty öljylämmityksestä maakaasuun.
2014 piharemontti.
2016 vesijohtoremontti, ulkoseinät huoltomaalattu.
2017 huoneiston B 4 vesivahinko on korjattu.
2018 asuntojen pääovet ja terassiovet uusittu.
2019 lukitus uusittu.
2020 talon päätyyn on tehty tarkistusluukku.
2021 tontilta on kaadettu puita ja kannot jyrsitty, päätyseinän tiilivuorauksen halkeama on korjattu, veden tonttiliittymä ja -sulkuventtiili on uusittu, postilaatikoille on tehty katos.
2022 siirrytty kaasulämmityksestä kaukolämpöön, sadevesikaivot avattu ja tyhjennetty, huoneiston B kattoikkunavuoto korjattu.
2023 C huippuimurin korjaus, asunto B kattoikkunan uudelleenpellitys, lämpimän veden venttiilin vaihto.
2024 katon tiivisteiden uusimista, lumiesteiden tiivisteiden ja kiinnikkeiden uusiminen, katon puhdistus.
Kattoikkunoiden tarkistus ja korjaustoimet.
Hulevesien ohjaus talojen päädystä – kourut.
1985 lämpölasit asennettu.
2002 vesikourut uusittu.
2003 kattoikkunat uusittu.
2004 vesikatto uusittu.
2006 ulko-ovet uusittu.
2013 siirrytty öljylämmityksestä maakaasuun.
2014 piharemontti.
2016 vesijohtoremontti, ulkoseinät huoltomaalattu.
2017 huoneiston B 4 vesivahinko on korjattu.
2018 asuntojen pääovet ja terassiovet uusittu.
2019 lukitus uusittu.
2020 talon päätyyn on tehty tarkistusluukku.
2021 tontilta on kaadettu puita ja kannot jyrsitty, päätyseinän tiilivuorauksen halkeama on korjattu, veden tonttiliittymä ja -sulkuventtiili on uusittu, postilaatikoille on tehty katos.
2022 siirrytty kaasulämmityksestä kaukolämpöön, sadevesikaivot avattu ja tyhjennetty, huoneiston B kattoikkunavuoto korjattu.
2023 C huippuimurin korjaus, asunto B kattoikkunan uudelleenpellitys, lämpimän veden venttiilin vaihto.
2024 katon tiivisteiden uusimista, lumiesteiden tiivisteiden ja kiinnikkeiden uusiminen, katon puhdistus.
Kattoikkunoiden tarkistus ja korjaustoimet.
Hulevesien ohjaus talojen päädystä – kourut.
Parkkipaikan laajennus ja katoksen rakentaminen toteutetaan, kun kunnalta saadaan vastaus tonttimaan hankinnasta kunnan puolelta Lentoharjun parkkipaikka-alueeksi.
- Asuntokohtaisen käyntiovien edessä olevan käytäväluiskan porrastaminen.
Tulevista korjauksista/remonteista on yhtiökokouksen päätös
- Asuntokohtaisen käyntiovien edessä olevan käytäväluiskan porrastaminen.
Tulevista korjauksista/remonteista on yhtiökokouksen päätös
Isännöintitalo Viljo
Jani Reilimo
+358291703750
jani.reilimo@viljo.io
Jani Reilimo
+358291703750
jani.reilimo@viljo.io
Asukkaat itse
Ei lain edellyttämää energiatodistusta
1 977 m²
Oma
Asemakaava
Muut lisätiedot
Ulkoautopaikat: 4
Ulkoautopaikat sähköpistokkeella: 4
Asunnolle kuuluu kaksi autopaikkaa, joista toinen on asunnon edessä ja toinen talon päädyssä.
sähköpistoke myyjän käytössä
Ulkoautopaikat sähköpistokkeella: 4
Asunnolle kuuluu kaksi autopaikkaa, joista toinen on asunnon edessä ja toinen talon päädyssä.
sähköpistoke myyjän käytössä
Nummelan harjun lenkkipolut ja hiihtoladut vieressä.
Nummelan keskustan palvelut kävelymatkan päässä.
Nummelan ala-aste n. 1 km. Yläaste ja lukio sekä uimahalli n.1,5 km.
Nummelan ala-aste n. 1 km. Yläaste ja lukio sekä uimahalli n.1,5 km.
Kaapistot, sälekaihtimet/rullaverhot, kiinteät valaisimet, ilmalämpöpumppu





























