Etsitkö kotia, jossa on potentiaalia ja tilaa toteuttaa unelmasi? Tässä on peruskuntoinen, tilava rivitalokolmio rauhallisella Pumminmäen alueella!
– Tämä läpitalon huoneisto tarjoaa runsaasti tilaa kahdessa kerroksessa
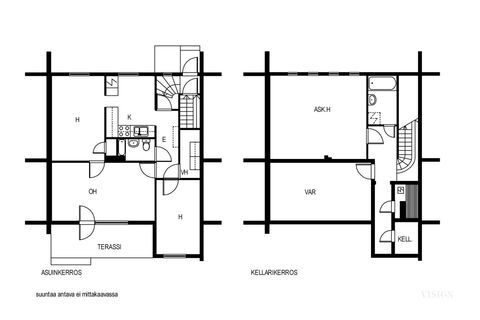
– Katutasossa 67,50 m²; 3 h + k + kph
– Kellarissa 67,50 m²; tilava askarteluhuone, joka soveltuu loistavasti esimerkiksi työhuoneeksi tai harrastetilaksi. Sauna ja pesuhuone sekä hyvät säilytystilat
– Huoneisto vapautuu kaupanteossa
– Lämmitys sisältyy hoitovastikkeeseen
– Oma vesimittari
– Huoneistolle kuuluu autotalli
– Taloyhtiössä on siirrytty maalämpöön, mikä takaa energiatehokkaan lämmityksen
Karkkilan Pumminmäessä asut rauhallisessa ympäristössä, jossa luonto on lähellä – Karkkilan koskireitille vain 400 metrin kävelymatka
Sovi oma esittelyaikasi ja tule tutustumaan!
Sari Liljegren LKV
puh. 0400 985 431
sari.liljegren@asuntokauppalkv.fi
Asuntoportaalien tiedot ovat rajalliset. Tilaa virallinen myyntiesite välittäjältä.
Hyvän välitystavan mukaisesti toimitan yhtiöpaperit vasta esittelyn jälkeen ostotarjousta harkitseville.

Kohdetta myy
03100 Nummelainfo@asuntokauppalkv.fi+358 40 571 4764
Esittely
Perustiedot
03600 Karkkila
Huoneiston pinta-ala on yhtiöjärjestyksen ja isännöitsijäntodistuksen mukaan 67,50 m². Myyjän ilmoituksen mukaan asuintilojen pinta-ala 67,50 m², 3 h,k,kph ja lisäksi kellaritilat 67,50 m²; kaksi isoa huonetta, sauna, ph ja säilytystilaa. Yhtiöjärjestyksen ja isännöitsijäntodistuksen mukaan kellaritila ei ole virallista asuintilaa. Pinta-aloja ei ole mitattu. Ei tarkistusmitattu.
Ostajan halutessa varmistua pinta-alasta, suosittelemme SFS-standardin 5139 mukaista pinta-alamittausta.
Hinta ja kustannukset
Laskettu velattomasta myyntihinnasta.
Hoitovastike 459 € / kk
Lisätiedot
1980-luvulla kellaritilaan rakennettu pieni sauna.
Varusteet: sähkökiuas
Seinien pintamateriaali: paneeli
Lattian pintamateriaali: laatta
Lämmönjakotapa: vesikiertoinen patterilämmitys
Asunnon tilat ja materiaalit
Seinien pintamateriaali: maalattu
pieni jääkaappi
arkkupakastin alakerrassa
Makuuhuoneiden määrä: 2
Varusteet: suihku, peilikaappi, kylpyamme
Seinien pintamateriaali: kaakeli
Lattian pintamateriaali: laatta
Katon pintamateriaali: Peltikate
Taloyhtiö
2020: D4 Yläkerran kph uusittu. Öljysäiliöt uusittu.
2021: Katot pinnoitettu.
2020: A-talon saloja- ja sadevesijärjestelmät uusittu. C4 yläkerran kph uusittu. A3 alakerran kph uusittu.
2019: D5 yläkerran kph uusittu. Salaojien- ja sadevesijärjestelmien suunnitelmat valmistuneet.
2018: C6 yläkerran kph uusittu.
2017: Muutokset antennijakamoon, että antenniverkon maksukanavat näkyvät normaalisti. Salaoja- ja sadevesijärjestelmät painehuuhdeltu ja kuvattu. A1 yläkerran kph uusittu. C6 yläkerran kph uusittu.
2016: Yhteisantennin päivitys HD-valmiuteen. C3 yläkerran kph uusittu.
2015: Maalämpö.
2014: D1 yläkerran kph remontoitu.
2011: Ulkokatteen maalaus.
2008: Rakennusten ulkoseinät lämpökuvattu.
1996: Käyttövesiputkisto uusittu.
1987: Lämmityskattila uusittu.
Turunen Carita
puh. 010 228 6708
carita.turunen@retta.fi
Tuusantie 3, 03100 Nummela
Palpen Oy
puh. 044 235 7419
toimisto@palpen.fi
Karkkilan kaupunki / Kaavoitus, puh. 09 4258 3600
Muut lisätiedot
Huoneistolle kuuluu autotalli (nro 13), autotallissa on sähköt.
Päiväkodit 2-4km.
Haukkamäen koulun ala-aste, Nyhkälän koulun ala-aste ja Karkkilan Yhteiskoulu (yläaste ja lukio) kävellen 1 km (autolla 2 km).


















