Suositulla Etelä-Nummelan alueella laadukkaasti v. 2005 rakennettu jykevä kivitalo 1001 m² omalla kulmatontilla.
– Talo on juuri kuntotarkastettu ja siinä hyväksi havaittu.
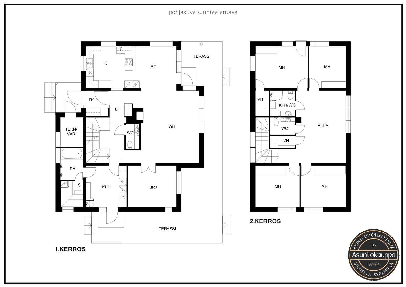
– Avarat ja ilmavat tilat kahdessa tasossa.
– Alakerrassa huonekorkeus osittain jopa 2,90 metriä.
– Olohuoneessa isot ikkunat, joista voit ihailla kaunista puistomaisemaa.
– Sähköllä lämpiävä vesikiertoinen varaava lattialämmitys, jonka lisäksi aurinkopaneelit, varaava takka sekä kaksi ilmalämpöpumppua.
– Alueella uusi koulukeskus päiväkoteineen sekä hyvät harrastusmahdollisuudet.
– Tämä on harvinainen tilaisuus hankkia koti alueelta, jossa luonto ja käytännöllisyys kohtaavat harmonisesti.
– Kahden auton katos, jonka yhteydessä kaksi lämmintä varastoa.
– Sähköauton latausasema kuuluu kauppaan.
– Helppohoitoinen piha, jossa etupiha kivetystä ja takapiha tasaista nurmea sekä terassia.
*Varaa henkilökohtainen esittely jo tänään ja koe itse, miksi tämä koti voisi olla juuri teidän perheenne seuraava luku.*
Hanna Johansson YKV, LKV
0405714764
hanna.johansson@asuntokauppalkv.fi

Kohdetta myy

03100 Nummelainfo@asuntokauppalkv.fi+358 40 680 7776
Esittely
Perustiedot
03100 Vihti
Hinta ja kustannukset
Laskettu velattomasta myyntihinnasta.
Lisätiedot
Saunassa seinät ja lauteet lämpökäsiteltyä puuta. Kiukaan takana olevassa seinässä kivilaatta.
Varusteet: sähkökiuas
Seinien pintamateriaali: paneeli
Lattian pintamateriaali: laatta
2025 Sisäseinien ja kattojen maalauksia.
2023 Aurinkopaneelien asennus.
2018 ilmalämpöpumput molempiin kerroksiin.
2015 Katon huoltoa.
2013 Iv:n puhdistus ja säätö.
Varaaja siirretty teknisestä tilasta khh-tilaan rakentamisen jälkeen.
Lämmönjakotapa: ilmalämpöpumppu, vesikiertoinen lattialämmitys
Asunnon tilat ja materiaalit
Elementtivalmisteinen, ulkoseinärakenteet betonia, elementtirakenteiset, eriste elementin välissä sekä eriste myös ulkopuolella + rappaus, väliseinät kivirakenteiset, välipohja betonia, yläpohja: puurakenteiset ristikot.
Varusteet: jääkaappi, pakastin, astianpesukone, induktioliesi, liesituuletin hormilla, mikroaaltouuni, erillisuuni
Seinien pintamateriaali: maalattu, osalaatoitus
Lattian pintamateriaali: laatta
Seinien pintamateriaali: maalattu
Lattian pintamateriaali: parketti
Yläkerrassa "master bedroom", jossa oma vaatehuone ja ranskalainen parveke. Lattia parkettia.
Muissa makuuhuoneissa laminaattilattiat ja reilusti kaappitilaa.
Makuuhuoneiden määrä: 5
Yläkerran suihkuhuone, jonka yhteydessä wc. Laattalattia ja laatoitetut seinät. Lattialämmitys.
Varusteet: lattiaan asennettu WC, bidee, lattialämmitys, peili
Seinien pintamateriaali: kaakeli
Lattian pintamateriaali: laatta
WC-tila 2: Varusteet: lattiaan asennettu WC, peili, allaskaappi, bidee, lattialämmitys
Seinien pintamateriaali: kaakeli
Lattian pintamateriaali: laatta
Varusteet: pesukoneliitäntä, lattialämmitys, kuivauskaappi, pöytätaso, pesuallas, kurapiste, lattiakaivo, uloskäynti, pyykkikaapit
Seinien pintamateriaali: paneeli, maalattu
Lattian pintamateriaali: laatta
Talousrakennuksen yhteydessä kaksi lämmitettävää varastoa.
Portaiden alla pieni erillinen varastotila, jossa keskuspölynimurin säiliö.
Katon pintamateriaali: Tiilikate
Katto hyvässä kunnossa.
Asunnon tontti
Kahden auton katos, jonka yhteydessä kaksi lämmitettävää varastoa.
Muut lisätiedot
Harjun ulkoilualue / hiihtokeskus / frisbeegolf-rata 2,10 km.
CM 1,40 km, Prisma puiston läpi 1 km, Pajuniityn päiväkoti ja neuvola puiston läpi 700 m.
Kaapeli-TV ja valokuituliittymä.




























