Teollisuus-/tuotantotila hyvien kulkuyhteyksien päässä Veikkoinkorven alueella.
– monipuoliset tilat, jotka soveltuvat erilaisiin tarpeisiin
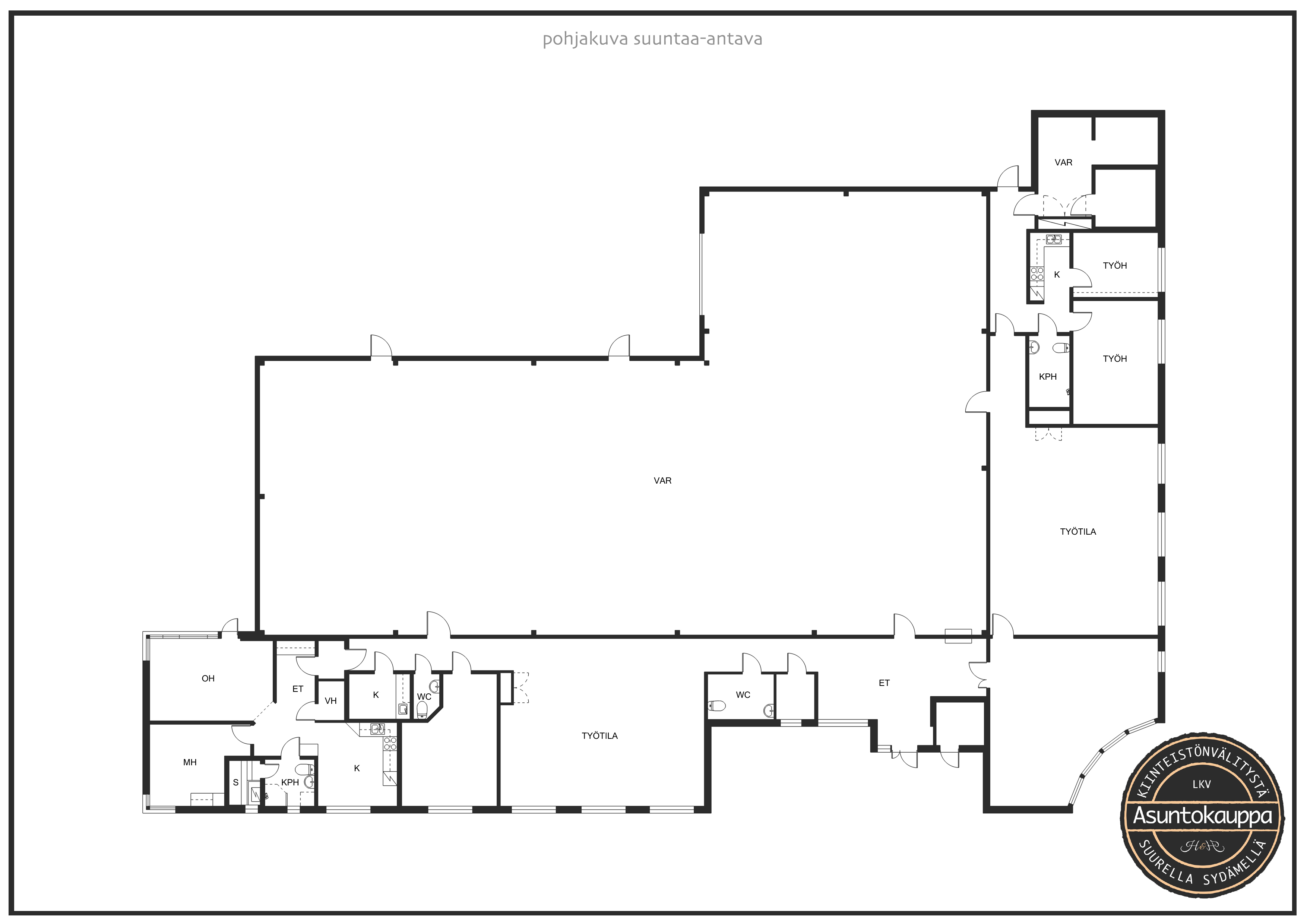
– toimistotila 309 m², halliosa 451 m²
– erillinen asunto 69 m², jossa tällä hetkellä vuokralainen
– oma kulmatontti 3556 m², josta asfaltoitua piha-aluetta n. 1420 m²
– kiinteistössä öljylämmitys ja asunnossa sähköinen lattialämmitys
– rakennusoikeutta jäljellä 430 k-m2
Sovi oma esittelyaikasi!
Hanna Johansson YKV, LKV
0405714764
hanna.johansson@asuntokauppalkv.fi

Kohdetta myy

Hanna JohanssonYrittäjä, Ylempi kiinteistönvälittäjä YKV, LKVhanna.johansson@asuntokauppalkv.fi040 571 4764
Asuntokauppa Hanna&Hanna LKV OyY-tunnus: 2635442-1Keskikuja 4
03100 Nummelainfo@asuntokauppalkv.fi+358 40 680 7776
03100 Nummelainfo@asuntokauppalkv.fi+358 40 680 7776
Esittely
Kohteen seuraavaa esittelyajankohtaa ei ole tiedossa
Perustiedot
61679414
61679414
Ratastie 5, Vihti
03100 Nummela
03100 Nummela
Tuotantotila
Ei
Omistusasunto
halli, toimistotila, varasto, asunto 2h, k, s
852 m²
Huoneistoalamittauksen mukaan pinta-alat jakautuvat seuraavasti:
Asunto-osa 69 m²
Toimisto, yms. tilat 309 m²
Varasto + tekninen tila + öljys. 23,00 m²
Halliosa 451,00 m²
Pinta-alan peruste: tarkistusmitattu
Asunto-osa 69 m²
Toimisto, yms. tilat 309 m²
Varasto + tekninen tila + öljys. 23,00 m²
Halliosa 451,00 m²
Pinta-alan peruste: tarkistusmitattu
852 m²
Hinta ja kustannukset
499 000 €
499 000 €
1 184 € / v
Öljyn kulutus talvesta riippuen 4000-5000 litraa/vuosi.
Kokonaissähkön kulutus n. 10000 kWh/vuosi.
Nuohous v. 2024 130 euroa.
Kokonaissähkön kulutus n. 10000 kWh/vuosi.
Nuohous v. 2024 130 euroa.
Lisätiedot
Ei
Hyvä
Kunnan vesijohto
Kunnan
Tontin lisätiedot
927-451-3-81
Piiska
Tasamaa
Asfalttipihaa n. 1420 m².
Asfalttipihaa n. 1420 m².
Oma
Asemakaava
Kyllä
Muut lisätiedot
Sähköliittymä
































